masterplast.uz

Какие бы Вы окна ПВХ, предпочли для себя

Ваше мнение важно для нас.   79 members have voted

  1. 1. Из какой профильной системы ПВХ Вы бы хотели заказать окна для себя ?

    • Из профиля AKFA 3-х кам. система
    • Из профиля AKFA 4-х кам. система
    • Из профиля AKFA серии Engelberg
    • Из профиля EKOPEN 3-х кам. система
    • Из профиля EKOPEN 4-х кам. система
    • Из профиля EKOPEN серии Elite
    • Даю предпочтение алюминиевым окнам
    • Даю предпочтение деревянным окнам
  2. 2. Исходя из соотношения цена и качество Какую фурнитуру Вы бы предпочли ?

    • Турецкую
    • Немецкую
    • Не важно какую
  3. 3. Решив поменять окна я ...

    • Обращаю внимание на происхождение профиля ПВХ и фурнитуры
    • Не обращаю внимание, все они одинаковые

Please sign in or register to vote in this poll.

55 posts in this topic

Tezikov: Ну так начнем.Поставил ваши рамы экопен,пока доволен.Скажу сразу контора как и все остальные впереди вы не на мизер шага даже.Позвонил приехали замерили подсчитали сказали цену уехали.Привезли раму вот тут молодцы на день раньше можно так сказать.Мою раму сняли замечательно.теперь расчет спрашиваю а как же моя скидка?Мне так с улыбкой в ответ а мы вам все со скидкой посчитали.Прямо молодцы. :D .Выходит изначально квадрат по завышенной цене уже со скидкой шел .Далее где мой гарантийный талон?который по идее должен быть сразу с рамой.но его не там не сейчас у меня нет.И еще вопрос про отлив что за сие чудо такое?отлив этот.можно хоть где то на него взглянуть?А да фурнитура все заказывал германское.так и есть привезли германские ручки но самые дешевые что есть.

считаем по полной ставим по среднему. :D

 

Masterplast.uz : Значит так, Отвечу как есть!!!

1." Поставил ваши рамы экопен,пока доволен" слава богу угодили. :D

2. "Скажу сразу контора как и все остальные впереди вы не на мизер шага даже" (Впереди, это значит как должно быть? Нет Газели со всякими наклейками как у некоторых у которых рамы после установки продувают или провисают или нет установщиков у которых рост не меньше 1,80 сила есть ума не надо, или же нет такого навороченного офиса в самом центре города с площадью как минимум 200 м.кв. Извините с такими критериями Ваши рамы обошлись бы охохооо :wacko:мало не покажется.

3. Позвонил приехали замерили подсчитали сказали цену уехали. (наверное не только замерили и подсчитали, а где посоветовали, проконсультировали);)

4. Привезли раму вот тут молодцы на день раньше можно так сказать. (фраза "можно так сказать") поконкретнее пожалуйста:(

5. Мою раму сняли замечательно. (вот за это спасибо):D

6. Теперь расчет спрашиваю а как же моя скидка? Уважаемый за все в этой жизни надо платить, неужели вы не понимаете что само слово говорит само за себя "скидка". Также понятия "Замер, установка бесплатно" дешевле это не значит хорошоB)

7. Далее где мой гарантийный талон? который по идее должен быть сразу с рамой.но его не там не сейчас у меня нет (Да соглашусь, с этим у нас прокол):o

8. И еще вопрос про отлив что за сие чудо такое?отлив этот.можно хоть где то на него взглянуть? (По идее отлив должен присутствовать в каждом окне, просто некоторых наших клиентов эти дырки раздражают, если этот вопрос для вас дело принципа, то без проблем, можно установить):rolleyes:

9. А да фурнитура все заказывал германское.так и есть привезли германские ручки но самые дешевые что есть. (Как говорится все познается в сравнение. Можно детально, что по вашему германское дешево и дорого):angry:

10. Считаем по полной ставим по среднему. (На счет "считаем по полной" не согласен,:( а "ставим по среднему" согласен ибо век живи век учись;))

 

 

Да и последнее. Все перечислили, а по поводу качества окна в деталях ничего :(

Edited by masterplast.uz
0

Share this post


Link to post
Share on other sites

Хочу поблагодарить Masterplast.uz за окна. Заказал в среду вечером, а в субботу днем рамы были уже установлены. Рамы очень понравились, цвет под дерево как я и хотел, дизайн и варианты механизма были очень правильно подсказаны. Ребята работают аккуратно и быстро, очень доволен, что обратился к вам, хотя до этого обзвонил не одну контору по изготовлению. Когда буду менять в спальне обращусь к вам снова ;)

0

Share this post


Link to post
Share on other sites

Хочу поблагодарить Masterplast.uz за окна. Заказал в среду вечером, а в субботу днем рамы были уже установлены. Рамы очень понравились, цвет под дерево как я и хотел, дизайн и варианты механизма были очень правильно подсказаны. Ребята работают аккуратно и быстро, очень доволен, что обратился к вам, хотя до этого обзвонил не одну контору по изготовлению. Когда буду менять в спальне обращусь к вам снова ;)

 

Это Вам спасибо что обратились к нам. Всегда рады помочь :)

0

Share this post


Link to post
Share on other sites

Ага ..так вот из за кого ко мне после обеда приехали. :) Ну что сказать мнение мое не поменялось.Рамы хорошие но работайте вы как и все ..Хотя нет вру поменялось :) .Молодцы

0

Share this post


Link to post
Share on other sites

Ага ..так вот из за кого ко мне после обеда приехали. :) Ну что сказать мнение мое не поменялось.Рамы хорошие но работайте вы как и все ..Хотя нет вру поменялось :) .Молодцы

 

:):):)

0

Share this post


Link to post
Share on other sites

Вопрос - ПОДСТАВОЧНЫЙ ПРОФИЛЬ вы ставите на окна ?

 

Подставочный профиль

 

0

Share this post


Link to post
Share on other sites

Вопрос - ПОДСТАВОЧНЫЙ ПРОФИЛЬ вы ставите на окна ?

а он вобще существует у местных производителей профилей? :unsure: :unsure: :unsure:

0

Share this post


Link to post
Share on other sites

а он вобще существует у местных производителей профилей? :unsure: :unsure: :unsure:

 

Летом был в Ташкенте искал фирму которая изготавливает рамы но с одним условием- наличие подставочного профиля , но так и не нашел .Получается без него рамы ставят по "колхозному ", соответственно также подоконник и отлив . Жаль , придется из Москвы тащить , а ведь он копейки стоит , меньше доллара за метр :(

Edited by кулинар
0

Share this post


Link to post
Share on other sites

"колхозному ", соответственно также подоконник и отлив . Жаль , придется из Москвы тащить , а ведь он копейки стоит , меньше доллара за метр...

у нас на саморезах экономят, а вы про какой то "базовый профиль" (так он называется у немцев)

вы еще про гидроизоляцию и пароизоляцию монтажного зазора начните спрашивать, уверен 80 процентов "оконщиков" Ташкента даже и не слышали что это такое :ph34r:

как говорилось в одной рекламе: "до Sh... нужно дорасти...", а в нашем случае, при отсутствии мировой конкуренции, местным производителям окон нет причин заморачиватся, зачем, итак купят (прям как в нашем автопроме ейбогу)

ну а "колхоз", дело добровольное (с)зачем выделятся если все делают без и все довольны))

Edited by general-alehin
0

Share this post


Link to post
Share on other sites

Летом был в Ташкенте искал фирму которая изготавливает рамы но с одним условием- наличие подставочного профиля , но так и не нашел .Получается без него рамы ставят по "колхозному ", соответственно также подоконник и отлив . Жаль , придется из Москвы тащить , а ведь он копейки стоит , меньше доллара за метр :(

 

Стоп. Стоп. Стоп. Не огорчайтесь, при желании сделаем с подставочным профилем :)

0

Share this post


Link to post
Share on other sites

Стоп. Стоп. Стоп. Не огорчайтесь, при желании сделаем с подставочным профилем :)

 

Я буду ПИОНЕРОМ -то есть тот кто правильно поставил себе окна :).Вопрос -как быстро вы изготавливаете окна ,из какого профиля , делаете ли двух камерный стеклопакет , и примерную стоимость 4 окон .Окно в 16- этажке может уже ставили в этих домах , примерный размер проема -высота 140см ширина 90см ,окно -одна створка до середины окна и вторая часть глухая двойное открытие то есть функция проветривания и фурнитура немецкая .И если можно какой профиль поставочный подходит для ваших рам , можно просто ссылку на него .

 

у нас на саморезах экономят, а вы про какой то "базовый профиль" (так он называется у немцев)

вы еще про гидроизоляцию и пароизоляцию монтажного зазора начните спрашивать, уверен 80 процентов "оконщиков" Ташкента даже и не слышали что это такое :ph34r:

как говорилось в одной рекламе: "до Sh... нужно дорасти...", а в нашем случае, при отсутствии мировой конкуренции, местным производителям окон нет причин заморачиватся, зачем, итак купят (прям как в нашем автопроме ейбогу)

ну а "колхоз", дело добровольное (с)зачем выделятся если все делают без и все довольны))

 

Я в Москве насмотрелся как окна ставят , да еще у друга брат начальником в немецкой фирме по изготовлению окон работает вот и решил себе в Ташкенте тоже окна по уму поставить, гидро и пароизоляция уже мне подарена:D ,только вот "базовый профиль" не подходит под образцы ташкентского . Спрашивал на Zebra.uz - они как все раму на подоконник и все , так я и сам могу поставить . Хочется чтобы культур мультур был .

Edited by кулинар
0

Share this post


Link to post
Share on other sites

Я буду ПИОНЕРОМ...

Хочется чтобы культур мультур был .

ну, на одной пароизоляции и базовом профиле "культур мультур" не заканчивается, гулять так, гулять))

откосы пластиковые с переходным адаптерным профилем на раме, крепления рамы через анкерные пластины, а не через профиль насквозь, наружный отлив, (настоящий, проклеенный виброгасирующим материалом, что бы тихо было во время дождя, ну и конечно с крепежными кронштейнами...)

признаться за свою работу только раз делал все перечисленное)) вас будет уже двое в Ташкенте :lol: :lol: :lol:

хотя на 16-ти этажный откос в ¾, вам наружная пароизоляция особо не нужна, ее предназначение защищать пену от UV лучей...

думаю Мастерпласт посчитает Вам "с запасом" ведь к такому продвинутому заказчику одной поездкой вряд ли ограничатся (ИМХО конечно)

удачи в окультурмультуровании:)

0

Share this post


Link to post
Share on other sites

ну, на одной пароизоляции и базовом профиле "культур мультур" не заканчивается, гулять так, гулять))

откосы пластиковые с переходным адаптерным профилем на раме, крепления рамы через анкерные пластины, а не через профиль насквозь, наружный отлив, (настоящий, проклеенный виброгасирующим материалом, что бы тихо было во время дождя, ну и конечно с крепежными кронштейнами...)

признаться за свою работу только раз делал все перечисленное)) вас будет уже двое в Ташкенте :lol: :lol: :lol:

хотя на 16-ти этажный откос в ¾, вам наружная пароизоляция особо не нужна, ее предназначение защищать пену от UV лучей...

думаю Мастерпласт посчитает Вам "с запасом" ведь к такому продвинутому заказчику одной поездкой вряд ли ограничатся (ИМХО конечно)

удачи в окультурмультуровании:)

 

Все выше перечисленное уже находится процессе упаковки для доставки в Ташкент , только осталось два вопроса какой П образный профиль лучше который с защелкой или который на саморезы к раме крепится , ну и отлив я точно не повезу -таможня не поймет :). Думаю только окна заказать а установку ,что бы свои нервы сберечь сам сделаю , единственное страшно будет на 14 этаже делать:). Кстати а сэндвич панели для откосов в Ташкенте продаются ?

0

Share this post


Link to post
Share on other sites

Вот этот образец подойдет. Хотя я не сказал бы что у этого профиля такая уж важная миссия, кроме как защелок между рамой и ПП, и для отлива место специальное.

Да и не везде можно применить этот профиль :), Если ошибаюсь, жду ваших комментарий. :D

post-26104-0-43202300-1320529054_thumb.jpg

0

Share this post


Link to post
Share on other sites

Вот этот образец подойдет. Хотя я не сказал бы что у этого профиля такая уж важная миссия, кроме как защелок между рамой и ПП, и для отлива место специальное.

Да и не везде можно применить этот профиль :), Если ошибаюсь, жду ваших комментарий. :D

 

Я привезу профиль, его то надо всего мне 4 метра, вопрос во сколько станут мне мои рамы размер проема высота 144см ширина 94 см , окно из двух частей -одна глухая , вторая открывается . Какой срок изготовления рам и какой профиль вы используете ?просто буду всего 20 дней :((с 1 по 20 января ) в отпуске и потому сроки важны .И еще вопрос ,как специалисту - в Ташкенте продается сэндвич для откосов ?И марку указонного подставочного профиля можно узнать ?

  • post-26104-0-43202300-1320529054_thumb.jpg

Edited by кулинар
0

Share this post


Link to post
Share on other sites

Смотрю на форуме не любят отвечать на конкретно поставленные вопросы .Получается не форум по окнам а реклама фирм :(, Вот и думай как люди работают ....... .

Edited by кулинар
0

Share this post


Link to post
Share on other sites

Я привезу профиль, его то надо всего мне 4 метра, вопрос во сколько станут мне мои рамы размер проема высота 144см ширина 94 см , окно из двух частей -одна глухая , вторая открывается . Какой срок изготовления рам и какой профиль вы используете ?просто буду всего 20 дней :((с 1 по 20 января ) в отпуске и потому сроки важны .И еще вопрос ,как специалисту - в Ташкенте продается сэндвич для откосов ?И марку указонного подставочного профиля можно узнать ?

  • post-26104-0-43202300-1320529054_thumb.jpg

 

Я так и не понял, какой профиль Вы хотите привезти ?

Мы же используем в основном профильную систему т.м. Ekopen

Сформулируйте пожайлуста вопрос поконкретнее

- скольки камерную вам надо (optima, forward, elite)

- фурнитура какая немецкая, турецкая (как я понял немецкая)

- створка с поворотным или поворотно-откидным механизмом ?

- и сколько изделий всего (от кол-ва изделий может меняться цена в зависимости от коэф-та отходов)

- показанный выше ПП произ-ва "Akfa Plast"

- про сендвич не знаю а ПВХ откосы продаются размером 60х90 мм.

 

За задержку приносим извинения :unsure: , Впрочем до 1 го января есть еще время. Успеете спокойно. :)

Ждем Вашего ответа ...

0

Share this post


Link to post
Share on other sites

Все выше перечисленное уже находится процессе упаковки для доставки в Ташкент///

можно поподробнее что именно и как вы собираетесь изолировать???

правильно обработанная монтажная пена легко справится с пароизоляцией, если по всему периметру окна покрыть силиконом (иемется ввиду когда срежите лишнее)

основной принцип строительной физики при изоляции проема. это изнутри герметичней чем снаружи (что бы влага из помещений не рвалась на улицу и не скапливалась за рамой)

так что гидроизоляционные ленты нужны только на примыканиях стеклянных крыш :rolleyes: :rolleyes: :rolleyes: а если нет разницы зачем платить больше (с)

Edited by general-alehin
0

Share this post


Link to post
Share on other sites

Я так и не понял, какой профиль Вы хотите привезти ?

Мы же используем в основном профильную систему т.м. Ekopen

Сформулируйте пожайлуста вопрос поконкретнее

- скольки камерную вам надо (optima, forward, elite)

- фурнитура какая немецкая, турецкая (как я понял немецкая)

- створка с поворотным или поворотно-откидным механизмом ?

- и сколько изделий всего (от кол-ва изделий может меняться цена в зависимости от коэф-та отходов)

- показанный выше ПП произ-ва "Akfa Plast"

- про сендвич не знаю а ПВХ откосы продаются размером 60х90 мм.

 

 

Добрый день . Теперь все по порядку :

1-профиль окна optima или forward ( если можно расчет с одним и другим )

2-форнитура строго немецкая

3-створка с поворотно-откидным механизмом

4-четыре окна

5-я имел в виду поставочный профиль , если у вас нет то я привезу

6- какой примерный срок изготовления окон ?

0

Share this post


Link to post
Share on other sites

можно поподробнее что именно и как вы собираетесь изолировать???

правильно обработанная монтажная пена легко справится с пароизоляцией, если по всему периметру окна покрыть силиконом (иемется ввиду когда срежите лишнее)

основной принцип строительной физики при изоляции проема. это изнутри герметичней чем снаружи (что бы влага из помещений не рвалась на улицу и не скапливалась за рамой)

так что гидроизоляционные ленты нужны только на примыканиях стеклянных крыш :rolleyes: :rolleyes: :rolleyes: а если нет разницы зачем платить больше (с)

 

Хочу изолировать шов между рамой и так называемой четверью лентой ПСУЛ и внутренний шов ГПЛ( Фольгированная лента самоклеющая гидропаротеплоизоляционная (пароизоляционная) ну вот и все что я хочу сделать . Если все подарили почему бы не сделать как положено :)

Edited by кулинар
0

Share this post


Link to post
Share on other sites

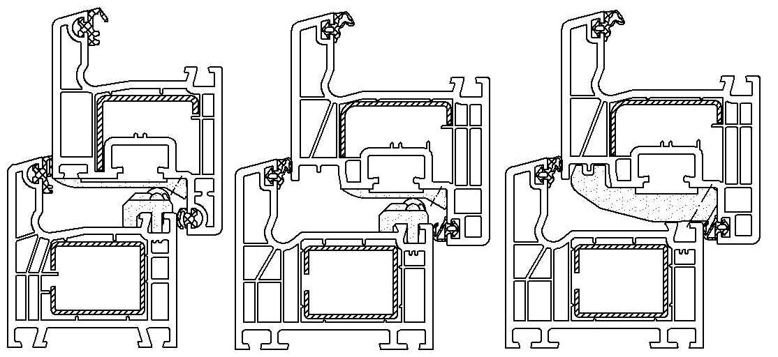
Хочу примерно вот так, просто когда на улице ливень и ветер у нас на 14 этаже вообще бедствие :)

post-4031-0-39934000-1320824802_thumb.jpg

post-4031-0-74248000-1320824803_thumb.jpg

post-4031-0-49932700-1320824867_thumb.jpg

0

Share this post


Link to post
Share on other sites

Ответ:

Скорее всего...

Edited by sputnik
Если вопрос в личку задаётся,то и отвечать надо в личке.
0

Share this post


Link to post
Share on other sites

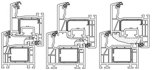
Вот это и называется ответная планка.

А черная это и есть средний прижим, который способствует дополнительному прижиму. :)

post-26104-0-58270700-1326579781_thumb.jpg

post-26104-0-74707500-1326579793_thumb.jpg

post-26104-0-73512900-1326579802_thumb.jpg

0

Share this post


Link to post
Share on other sites

А черная это и есть средний прижим, который способствует дополнительному прижиму. :)

masterplast ничего не путаеш???

с вашим то опытом и не отлечить "средний прижим" от "механизма поддержания створки от провисания" :o :o :o

post-8280-0-16929000-1326612087_thumb.jpg

post-8280-0-48870800-1326612097_thumb.jpg

0

Share this post


Link to post
Share on other sites

masterplast.uz имеются ли в наличии (или может имеется возможность достать) вентиляционные (климатические) клапана для пластиковых окон?

0

Share this post


Link to post
Share on other sites

  • Recently Browsing   0 members

    No registered users viewing this page.