ig66

Выбор сплит кондиционера на рынке Ташкента

14 991 posts in this topic

На оф. сайте Артела одна из 12-х моделей расчитана на площадь 24 кв. м. Это как так? На эту площадь расчитаны почти все ДЕВЯТКИ от других фирм, а 12-я на 33-38 кв. м.!

А что вы удивляетесь, вы их ещё и по весу сравните и станет всё ясно :biggrin: а ещё потребление электроэнергии посмотрите, жрёт на 200-300вт больше, экономия как говорится на лицо. Ну не бывает так в природе что бы техника была и дешёвая и нормальная, не зря же придумали поговорку - скупой платит дважды-

1

Share this post


Link to post
Share on other sites

сегодня видел кондиционер AUX. Качество пластика внутреннего блока не очень, зато по размеру большой. Также внешний блок весит 39Кг!! и имеет внутренний подогрев теннами для работы зимой. цена около 390 у е . Кто чего про него может сказать?

0

Share this post


Link to post
Share on other sites

Ну не бывает так в природе что бы техника была и дешёвая и нормальная, не зря же придумали поговорку - скупой платит дважды-

А любитель брендов - трижды...

Давайте сравним Дайкин (Тадиран, Мицибущи) и какой-нить ГРИ...

Последний по цене - просто Дешёвка!

 

И что? Значит он настолько хуже?

 

Также и ГРИ с Артель - если последний дешевле, то только лишь за счет того, что сокращены расходы на доставку, растаможку и пр...да зарплаты на этих фабриках наверняка разные...

 

ИМХО

 

Строго - моё личное мнение, только без обид.

1

Share this post


Link to post
Share on other sites

Ташкент 2009, Благодарю еще раз за помощь с магазином, где есть рассрочка

1

Share this post


Link to post
Share on other sites

Купил бы тадиран инверторный, пока довольствуюсь мультисплитом от тадиран

0

Share this post


Link to post
Share on other sites

Давайте сравним Дайкин (Тадиран, Мицибущи) и какой-нить ГРИ...

Последний по цене - просто Дешёвка!

 

И что? Значит он настолько хуже?

Именно так и есть :)

Строго - моё личное мнение, только без обид.

На чём оно основано? Вы сравнивали мицубиши-панасоник-дайкин в работе с артелем и не заметили разницы?

Edited by SAWERS
0

Share this post


Link to post
Share on other sites

Дык послушешь знакомых, как у них ломаются только что установленные АРТЕЛи... потом посмотришь на кислые физиономии установщиков (они даже не говорят ничо, просто морщаться) при впоросе "Ну а АРТЕЛ как? ничо ваще кондишен?"... ну и тоже мнение складывается, только совсем другое правда. :biggrin:

Edited by Igori
0

Share this post


Link to post
Share on other sites

Если устанавливать так, как это делают 90% наших устозов, то даже золотая техника не будет работать. Артелы работают в целом неплохо. Сравнивая многие модели этой зимой могу сказать, что работа его в сравнении с ними вполне удовлетворительная Для сравнения Чиго и Артел этой зимой у меня в квартире при совершенно одинаковых условиях на выдув выдавали температуру с разницей в 5 градусов. Правда Чиго установлен в 2007 году, а Артел в прошлом, но победил Артел с 50 градусами на выходе из фена ночью в середине января этого года. Артел был установлен в зале, а Чиго в спальне, где площадь немного меньше. Но по измерении температуры в комнате Артел делал более высокую температуру. Это неоспоримый факт, Оба 12е. Причём Чиго весит свыше 30 кг, а Артел 26кг.

 

у них ломаются только что установленные АРТЕЛи

У меня за два с лишним года нет рекламаций на установленные мною Артелы. Не скажу, что все они работали одинаково хорошо. Но так как условия эксплуатации различные, поэтому оценивал их с учётом этого фактора. Но именно сломанных у меня не было ни одного. Это может подтвердить мой сервисцентр Самсунг в Намангане, где я их ставлю на официальную гарантию.

 

Чтобы не казаться, что я тут один безошибочно работаю, могу добавить. В самом начале сталкивался, что гайки на штуцера не всегда ложились как надо. Это был заводской брак. Несколько раз приходилось заново переделывать и заливать по полной фреон в систему. Но от этого он хуже не становился. Один раз даже пришлось забрать Артел 12 от клиента. Клиент оказался мнительным. Потребовал установить ему другую модель. Я вернул деньги и забрал Артел обратно на склад. В ноябре месяце в связи с наступлением холодов установил его себе

Edited by Parabellum
1

Share this post


Link to post
Share on other sites

А что вы удивляетесь, вы их ещё и по весу сравните и станет всё ясно :biggrin: а ещё потребление электроэнергии посмотрите, жрёт на 200-300вт больше, экономия как говорится на лицо. Ну не бывает так в природе что бы техника была и дешёвая и нормальная, не зря же придумали поговорку - скупой платит дважды-

Верно! Если не ошибаюсь, 12-й Артел Аврора жрет 1370 Вт (!!!), , а внешний блок весит около 25 кг. И по мне так чем Артел-12 за 300 д брать, лучше какую-нибудь Медею-9 почти за ту же сумму, и потребление энергии меньше-около киловатта, а площадь охлаждения такая же

п.с. Ошибся, площадь охлаждения у Авроры-12 заявлена как 20-25 кв.м. (20-это даже не импортная девятка, это уже почти СЕМЕРКА!), а уровень шума внутреннего блока целых 40 дб! Уже сравнимо с оконными

Edited by dk00
0

Share this post


Link to post
Share on other sites

Parabellum , у вас какая именно модель? И как именно по вашим ощущениям в сравнении с другими производителями 12 кондиционеров он соответствует 12 или все же 9 ? к примеру если с гри сравнивать... Воздухопоток нормальный?

0

Share this post


Link to post
Share on other sites

Купил бы тадиран инверторный, пока довольствуюсь мультисплитом от тадиран

Tadiran - крутой бренд. К сожалению его почти не завозят... Да и ЦЕНЫ - кусаются

 

Вы сравнивали мицубиши-панасоник-дайкин в работе с артелем и не заметили разницы?

Главная разница, которая реально отпугнёт клиентов в Узбекистане - ЦЕНА.

Мицубиши-12 за 1000-1200USD кто купит? Особо продвинутый? Не вопрос. а сколько таких в городе?

Каждому продукту - свой покупатель, и если Покупатель думает практично и подходит к выбору бытовой техники, не так как к выбору жены... :lol: - то ему просто незачем казаться лучше, чем он есть на самом деле.

Никто сравнивать Мировых Лидеров с ГРИ-ЧИГО-МИДЕА = не будет! почему? Потому что они в разных категориях

Готовы сравнивать Костю Дзю и Кличко? Кто из них победит в прямой схватке?

Но это совершенно ничего не значит. Дзю - хорошо по своему и в своей категории, а Клычко - в своей.

согласны?

 

потом посмотришь на кислые физиономии установщиков...

Ты ещё вспомни кислые рожи "бегунков" на А-Сохий! Они тоже, как ты, при упоминании Артель морду кривят и всякие гадости говорят...почему? А всё просто - их Артелька в долю не берёт, услугами "Бегунков" не пользуется, "откат" от магазинов не берёт... Поэтому, один купленый Артель-12 = это минус 10-20баксов из кармана "бегунка". который всеми правдами (а скорее НЕПРАВДАМИ) пихает "свою" продукцию). И что самое весёлое - люди на это ведутся...

 

Если устанавливать так, как это делают 90% наших "устозов", то даже золотая техника не будет работать.

Артелы работают в целом неплохо.

Дорогой Парабеллум!

Есть тут люди, которые просто вас не услышат, более того, обвинят в ангажированности, хотя я то знаю вас, как Мастера Специалиста, к которому едут за многие километры в Долине.

И то, что у вас Артель-12 зимой хорошо отработал - определенные персонажи, не поверят никогда...

0

Share this post


Link to post
Share on other sites

Верно! Если не ошибаюсь, 12-й Артел Аврора жрет 1370 Вт....шум 40Дб- Уже сравнимо с оконными

Ну, Вы - Очень Большой "Специалист"! - ОБС!

Читаем:

 

 

Уровни шума - от 0дб до 160дб

дБА (dB)описание

(аналогия) расстояние

160 самолет при взлете

160 невыносимый шум

105 (100-110) домашний кинотеатр на полную мощность

100 сирена

93 (90-95)перфоратор

90 (85-95)железная дорога, трамвай

90 крик

90 шум, который невозможно не замечать

87 (83-91)работа мусороуборочной машины с 7.5 м

85 музыкальный центр

83 электрополотер

83 музыка по радио

81 (76-85) игра в футбол с 7.5 м

80 игра на пианино

80 громкий разговор

78 детский плач

77 (72-82)игры детей7.5 м

75 пылесос

70 (63-77)проезд грузового автомобиля во дворе7.5 м

70телевизор

70речь по радио

70громкий разговор5 м

68 стиральная машина

65 спокойный разговор

62 (57-67) проезд легкового автомобиля во дворе удаленность 7.5 м

60 электробритва

60 телевизор, музыкальный центр на средней мощности

55 (50-60)легковой автомобиль

54 (40-67) наполнение бачка в санузле

53 (45-60) стук по трубе центрального отопления раздающийся

53 (50-55) вытяжной вентилятор

50 (42-58) стук закрываемого мусоропровода через стену

50 негромкий разговор 3 метра

50 тихий двор

50 шум, который не причиняет неудобств

48 (44-52 )звук закрываемой двери лифта через стену

47 (36-58) наполнение ванны

47 (44-50 )вытекающая из крана вода

45 практически не слышно

43 (40-45) кондиционер

42 (40-43) холодильник

42 принудительная вентиляция

40 разговор с 10 метров

40 шелест листьев при тихом ветре

39 (35-42)приготовление пищи на плите

38 (34-42)перемещение лифта через стену

35 тихо

30 шепот (различимый) 5 метров

25 тихий сад

25 очень тихо

20 легковой автомобиль на удалении 1 км

20 шелест страниц

10 спокойное дыхание

10 тишина в горах

0 - неслышимый звук

 

http://otvet.mail.ru/question/56164532

А я вот думаю, чего я не оглох ещё?

Эту "Аврору-12ую", через мои алюминиевые рамы - вообще ни фига не слышно!

Век воли не видать! (с)

 

P.s. Афтар пиши исчо! (с)

P.P.S Только о том, что ТОЧНО сам знаешь. ОК? :facepalme: :p

Edited by Ташкент-2009
1

Share this post


Link to post
Share on other sites

Parabellum , у вас какая именно модель? И как именно по вашим ощущениям в сравнении с другими производителями 12 кондиционеров он соответствует 12 или все же 9 ? к примеру если с гри сравнивать... Воздухопоток нормальный?

Два года назад была одна модель, Монтана. Правда установил я его почти год спустя, как он вышел из завода. 12й Артел. По ощущениям честно говоря нормально. Кондиционер работать должен так. чтобы не замечать изменения температуры в комнате в течении продолжительной времени работы. Установил 25 градусов на дисплее с пульта, вот и должно быть в комнате 25 градусов. Для контроля примерно чуть ниже глаз установил термометр. Показания держатся почти градус в градус.

0

Share this post


Link to post
Share on other sites

Установливали сегодня 5 штук артеля, в одном не было фреона :-[

0

Share this post


Link to post
Share on other sites

На счёт лоббирования какой то определённой модели это зря. Я устанавливаю довольно много моделей. Чаще всего цена на них отличается значительно не из за хладопроизводительности, а из за бренда, дизайна и дополнительных навооотов А ломаются они чаще всего от неправильной установки, а так же безграмотной эксплуатации. В остальном кто может сказать, что у него стоит дорогая элитная модель и без обслуживания и без присмотра уже 10 лет работает и холодит лучше всякого бюджетного кондиционера? При цене в два раза больше не будет он работать в два раза дольше. Это тоже самое, что человек, живущий у нас в республике и в абсолютном достатке не факт, что проживёт дольше нашего дехканина в 100 раз, если он зарабатывает в 1000 раз больше денег. Конечно это относится к нормальным моделям, собранным на заводе, а не на коленках в какой нибудь китайской глубинке. Отдельно по Артелам не считал, но могу сказать, что примерно равное количество было установлено мною в прошлом году Артелы, ЛЖ, Самсунги, Ситроники, Мидеи Гри, немного меньше Чиго, Хайер, Хайсенс, Ройсон, остальные даже не помню из редкой установки. У каждой из этих моделей присутствовали мелкие недочёты, но слава Богу, ничего серьёзного не было. В памяти осталось несколько заводских браков, связанных с электроникой Что то из них смог отремонтировать с помощью моего постоянного мастера по электронике. Отдельные кондиционеры пришлось сразу же вернуть в магазин уже на стадии установки.

2

Share this post


Link to post
Share on other sites

Установливали сегодня 5 штук артеля, в одном не было фреона :-[

Один раз был обнаружен явный протёк со стороны штуцеров на одном Чиго, у которого кран не держал, но фреон всё же там был. Обнаружилось это тогда, когда я сделал вакуумирование, а потом через полминуты после выключения компрессора, на манометре давление стало от -1 бар поднималось к нулю. Правда прежде, чем я утечку обнаружил, пришлось сделать демонтаж и проверять абсолютно всё: трубки, стыки, фен и сам внешний блок. В итоге, когда пальцем закрыл штуцер, то заметил, как фреон еле заметно травит оттуда. Затягивание крана ничего не дало. Пришлось установить, долить фреон и до сих пор работает.

0

Share this post


Link to post
Share on other sites

Когда мы открыли, там штуцеры уже открыты были, то ли не заправили, то-ли не закрыли, не понятно

0

Share this post


Link to post
Share on other sites

ну вот мне интересен сам факт. если рядом поставить артель и medea и gree к примеру. будут ли они все одинаково холодить? ну хотя бы теоретически если прикинуть? от чего такая разница в весе внешнего блока( что там легче: радиатор,компрессор, или корпус). и почему такая разница в рекомендованных площадях? маркетинговый ход или все же есть основания?

1

Share this post


Link to post
Share on other sites

Даже не знаю как ответить по поводу сравнения. Конечно же в идеале поставить в одинаковые помещение и включить все три одновременно. Но такое вряд ли возможно, если конечно не в лабораторных условиях. В отношении замеров могу сказать. что у последнего клиента Гри меня не слишком впечатлил. Возможно это из за того. что дом был высокий, практически 3-х этажный с высокими потолками и этажность установки была 2 и 3й этажи. Выдувало свыше 10 градусов, Примерно в такое же время года замерял Мидею из Китая. С иероглифами был пульт. Работал он замечательно, фен был просто огромный для 07. Артел, который стоит у меня в комнате периодически для интереса замеряю. Обычно выдув достигает 9.5 градусов и после этого выключается компрессор. т.к. температура установленная обычно уже достигается, а это примерно в пределах 23-25 градусов.

1

Share this post


Link to post
Share on other sites

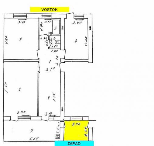
Уважаемый Парабеллум. Прошу Вас дать рекомендацию на покупку и места установки сплит-систему согласно чертежа моего дома. Самая больщая жара исходит от балкона.

post-25556-0-66699100-1401274918_thumb.jpg

Edited by sherkhans
0

Share this post


Link to post
Share on other sites

Прошу Вас дать рекомендацию на покупку и места установки сплит-систему согласно чертежа моего дома.

Самая больщая жара исходит от балкона.

Я бы вот так поставил

 

Открывал бы дверь и охлаждал бы не только балкон

Направление воздуха с фена указал стрелкой

 

P.S> Парабеллум! Вы согласны, Сенсей? :rolleyes:

1

Share this post


Link to post
Share on other sites

ну вот мне интересен сам факт. если рядом поставить артель и medea и gree к примеру. будут ли они все одинаково холодить? ну хотя бы теоретически если прикинуть? от чего такая разница в весе внешнего блока( что там легче: радиатор,компрессор, или корпус). и почему такая разница в рекомендованных площадях? маркетинговый ход или все же есть основания?

 

У меня в одной комнате стоит gree 12, а в другой bosch 12.

На счет холодить не знаю,пока не включал на холод. Но за тепло могу однозначно сказать gree рулит.

Что по внешнему шуму блока, что по силе выдува фена. Да и внешний блок у него выглядит массивнее чем у bosh.

Лучше б я взял gree во вторую комнату.

0

Share this post


Link to post
Share on other sites

Вячеслав, вполне согласен. Судя по схеме. у него довольно много изолированных помещений. Следовательно, чтобы сделать раздачу холода более эффективной, надо ликвидировать приток из самого жаркого помещения, которое следует изолировать. Так как бороться с солнцем пустая затея. К тому, что нарисовал Ташкент 2009, следовало бы добавить кондиционер в 8 й комнате или хотя бы в 7й, это по вашему усмотрению. Одним кондиционером обойтись не получится. Хотя как вариант, можно установить кондиционер в 4й зоне, чтобы попытаться объять необъятное, т.е. убить одним кондиционером все помещения разом, путём открывания и закрывания смежных дверей.

2

Share this post


Link to post
Share on other sites

Доброго времени суток. Проблема с кондиционером: самсунг 9ка AQ09, на площади в 22 кв. м.. Установил в прошлом году - отработал нормально. Пару раз включал в межсезон - для того чтобы погонять смазку. Вчера включил на охлаждение - час работал нормально, потом скорость воздушного потока резко упала, снизилось качество охлаждения. Открыл крышку и обнаружил, что радиатор внутреннего блока весь покрылся коркой снежной в верхней части, в нижней радиатор был на ощупь не холодный. Переключил в режим вентилятора - снег растаял. Прочистил фильтры - включил сегодня, снова та же история. Понятно, что есть проблема. Лопасти вентилятора слегка грязные. Осмотр наружного блока - толстый слой инея на одном патрубке, конденсат на другом. В чём причина этих неплодок? Утечка фреона? Устанавливал по акции (кстати, снова проводят бесплатную установку от Самсунг) мастер по имени Бабур, ваккумацию не делал, сказал что он её никогда не делает, так как можно аккуратно прогнать фреон по системе без ваккумации.

 

Есть у кого нибудь опыт обращения в сервисные центры Самсунг? Стоит из вообще вызывать и не приедут ли они к осени? ))

0

Share this post


Link to post
Share on other sites

По вашему вопросу:или добивайте сервис центр, иди если не получится, зовите экобану, они тоже гарантию дадут вам. В любом случае, оба исполнителя дадут вам гарантию на выполненную работу. Разница только в официальности этой гарантии. И то, об экобане вы на форуме плохих отзывов не найдете. Это все, если вы в Ташкенте

Edited by Roostam
0

Share this post


Link to post
Share on other sites

Create an account or sign in to comment

You need to be a member in order to leave a comment

Create an account

Sign up for a new account in our community. It's easy!


Register a new account

Sign in

Already have an account? Sign in here.


Sign In Now

  • Recently Browsing   0 members

    No registered users viewing this page.