Jahongirman

Лучшее время для покупки/продажи квартир

59 082 posts in this topic

Только что, Khudo сказал:

Комнаты смежные?

А разве по плану не видно ?

 

Кстати, можно сделать такую перепланировку:

 

photo_2019-11-09_15-31-08.jpg

0

Share this post


Link to post
Share on other sites
10 минут назад, Khudo сказал:

Комнаты смежные?

Можно вернуть как было:

 

План_оригинал — копия.jpg

0

Share this post


Link to post
Share on other sites
22 минуты назад, MAKLER сказал:

Можно вернуть как было:

какая то пародия на 77 серию 

0

Share this post


Link to post
Share on other sites
4 минуты назад, ZTa сказал:

какая то пародия на 77 серию 

Извините, но на 77-ю никаким боком, это обычная московская планировка, с раздельным санузлом, смежными комнатами, но...со вставкой между разными домами из 3-й комнаты и полулоджией !

0

Share this post


Link to post
Share on other sites
15 hours ago, MAKLER said:

Г-образный дом, там весь 1-й этаж магазины, кафешки, 

Какая нафик Москва? В московской трешке 79кв, все комнаты раздельные. Весь Цэбыр тебе в помощь для наглядного пособия. 

А в этом Г-образном доме жить невозможно, от слова СОВСЕМ. Вечный бидлам во дворе и округе. Полный капец

1

Share this post


Link to post
Share on other sites
49 минут назад, DOS сказал:

Какая нафик Москва? В московской трешке 79кв, все комнаты раздельные. Весь Цэбыр тебе в помощь для наглядного пособия.

Ты чё, не стой ноги встал, ты кому это говоришь ? С моих сообщений по планировкам нахватался за пару-тройку лет и понты колотишь, подкалывая меня ;) :lol: :facepalme:

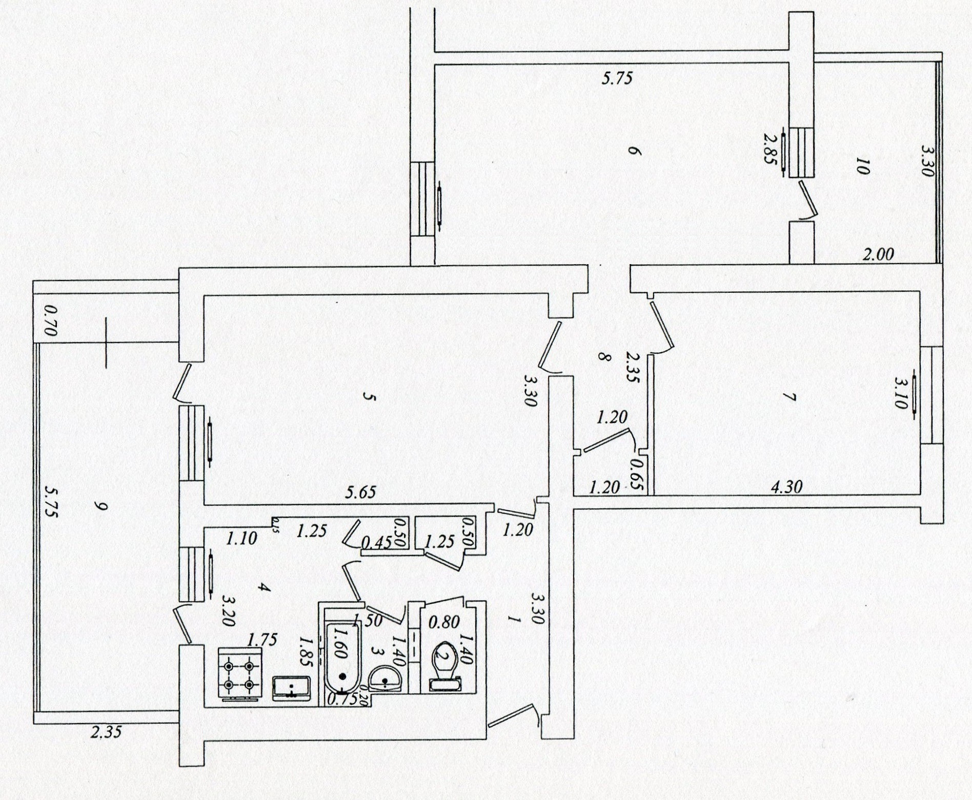
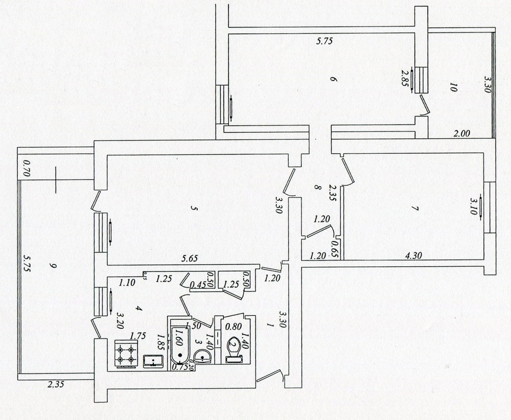
Ты реальный план квартиры видел ? Изначально по проекту планировалось 2 отдельно стоящих дома, фасадом к рынку и торцом к рынку, видимо затем внесли изменения, к торцу сделали пристройку и объединили 2 дома в один, если ты видел Г-образный дом на Художников, на уровне первого этажа проход внутрь двора, а со второго этажа добавлены помещения в квартирах, здесь считай точно так же ;)

Зри в план, изначально должна была быть московская 2-ка, санузел раздельный, смежные комнаты, стена в помещении 5 и 7 торцевая, затем пристроили помещение 6 и полулоджию 2х3.30, получилась 3-ка:

 

P.S. Чтобы не шокировать общественность, я подкорректировал план квартиры, этот план реальный 

 

План_оригинал.jpg

Edited by MAKLER
0

Share this post


Link to post
Share on other sites
44 минуты назад, DOS сказал:

А в этом Г-образном доме жить невозможно, от слова СОВСЕМ. Вечный бидлам во дворе и округе. Полный капец

В любом доме живут люди, в этом много дорогих иномарок, все квартиры заняты, значит кого-то устраивает место, рынок, центр города ;)

1

Share this post


Link to post
Share on other sites
21 час назад, MAKLER сказал:

А разве по плану не видно ?

 

20 часов назад, MAKLER сказал:

это обычная московская планировка

Первый раз вижу московскую планировку со смежными комнатами...

0

Share this post


Link to post
Share on other sites
4 часа назад, Khudo сказал:

Первый раз вижу московскую планировку со смежными комнатами...

Ну потому, что скорее всего не маклер :D в двушках санузел раздельный, лоджия 2х6, комнаты комнаты смежные, а в квартире по середине подъезда, малогабаритки, с 2х6 и с навесными 1.20х2.50, первые этажи вообще без балконов.

0

Share this post


Link to post
Share on other sites
10 hours ago, MAKLER said:

 С моих сообщений по планировкам нахватался за пару-тройку лет и понты колотишь,  

С небес спустись, понтоплюй. У меня была московская, классическая трёшка. Всё комнаты раздельные, 79кв., сушилка над подъездом. Ещё задолго до твоих планировок была. Из прихожки вход во все три комнаты. 

3

Share this post


Link to post
Share on other sites
1 hour ago, MAKLER said:

 в квартире по середине подъезда, малогабаритки, 

Торцевые тоже такие есть. 

0

Share this post


Link to post
Share on other sites
2 часа назад, DOS сказал:

С небес спустись, понтоплюй. У меня была московская, классическая трёшка. Всё комнаты раздельные, 79кв., сушилка над подъездом. Ещё задолго до твоих планировок была. Из прихожки вход во все три комнаты. 

:facepalme: Тебе бы ещё эмоции контролировать до того, как вникнешь в тему разговора :lol: я говорил, что этот дом московская планировка, в квартире скорее всего изначально была 2-ка, затем сделали пристройку, объединили 2 дома в один, раскидали дополнительные комнаты по разным квартирам, в этой квартире получилась 3-ка, но тип дома от этого не изменился :palcy:

1 час назад, Колибри сказал:

Торцевые тоже такие есть. 

Не часто, но есть, 1-комнатная с 2х6, и через стену малогабаритка 2-ка, обе торцевые.

0

Share this post


Link to post
Share on other sites

MAKLER спасибо за информацию, за реальные цены по сделкам.

3

Share this post


Link to post
Share on other sites
9 часов назад, MAKLER сказал:

Ну потому, что скорее всего не маклер :D

Однозначно, не маклер.

9 часов назад, MAKLER сказал:

комнаты смежные, а в квартире по середине подъезда, малогабаритки, с 2х6 и с навесными 1.20х2.50, первые этажи вообще без балконов.

Мы точно говорим о об одних и тех же домах? Я говорю про дома московской планировки на Ц--1 и Ц-2. Там нет смежных комнат, и квартиры на первых этажах - с большими лоджиями.

1

Share this post


Link to post
Share on other sites
11 часов назад, Khudo сказал:

Мы точно говорим о об одних и тех же домах? Я говорю про дома московской планировки на Ц--1 и Ц-2. Там нет смежных комнат, и квартиры на первых этажах - с большими лоджиями.

Мы говорим о домах т.н. "московской планировки", 4-х и 5-ти этажные кирпичные дома, в зависимости от года постройки отличается и сама планировка в доме.

В центре подъезда 2-ка с раздельными комнатами и раздельным санузлом, лоджией 2х6, но в спальных районах чаще встречается планировка (см.скан), где в первом и последнем подъездах расположены торцевая 1-комнатная (по плану кв. № 69), посередине подъезда 2-х комнатная (кв.№ 68) с раздельными комнатами и совмещенным санузлом, и лоджией 2х6, третья квартира 3-х комнатная (по плану кв. № 67), там всё раздельно, и комнаты и санузел и лоджия 2х6.

 

Но есть дома, где в 2-ке посередине на первом этаже нет вообще балкона, а со второго этажа всего навесной балкон 1.20х2.50, (следующий план квартиры).

2-ком кирпич москва раздельные совмещён 2х6 дверь направо (копия).jpg

2-х ком кирпич малогабаритка.jpg

Edited by MAKLER
0

Share this post


Link to post
Share on other sites

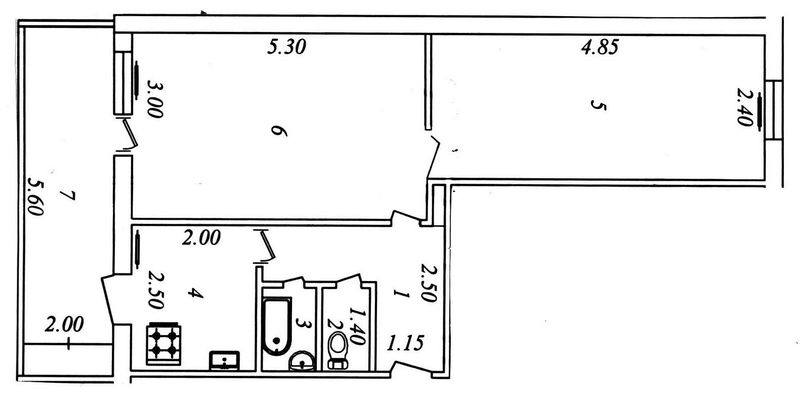
А тем временем:

3/8/9 м.Шахристанская, банковский дом 2003 г.п., общая 111 кв.м., жилая 60 кв.м., с момента постройки ремонт не делали, договорились за 74 000

 

plan (оригинал) — копия.jpg

3

Share this post


Link to post
Share on other sites
3 часа назад, MAKLER сказал:

Мы говорим о домах т.н. "московской планировки", 4-х и 5-ти этажные кирпичные дома, в зависимости от года постройки отличается и сама планировка в доме.

В центре подъезда 2-ка с раздельными комнатами и раздельным санузлом, лоджией 2х6, но в спальных районах чаще встречается планировка (см.скан), где в первом и последнем подъездах расположены торцевая 1-комнатная (по плану кв. № 69), посередине подъезда 2-х комнатная (кв.№ 68) с раздельными комнатами и совмещенным санузлом, и лоджией 2х6, третья квартира 3-х комнатная (по плану кв. № 67), там всё раздельно, и комнаты и санузел и лоджия 2х6.

 

Но есть дома, где в 2-ке посередине на первом этаже нет вообще балкона, а со второго этажа всего навесной балкон 1.20х2.50, (следующий план квартиры).

2-ком кирпич москва раздельные совмещён 2х6 дверь направо (копия).jpg

2-х ком кирпич малогабаритка.jpg

Но смежных комнат в этих квартирах тоже  нет, о чем говорили и DOS, и я.

0

Share this post


Link to post
Share on other sites
4 часа назад, MAKLER сказал:

Но есть дома, где в 2-ке посередине на первом этаже нет вообще балкона, а со второго этажа всего навесной балкон 1.20х2.50, (следующий план квартиры).

2-ком кирпич москва раздельные совмещён 2х6 дверь направо (копия).jpg

2-х ком кирпич малогабаритка.jpg

Именно такие дома на Чиланзаре 23.

43 минуты назад, Khudo сказал:

Но смежных комнат в этих квартирах тоже  нет, о чем говорили и DOS, и я.

Двушки с балконом 2×6 все смежные сам живу в таком доме.

1

Share this post


Link to post
Share on other sites
36 минут назад, alis2310 сказал:

Именно такие дома на Чиланзаре 23.

Двушки с балконом 2×6 все смежные сам живу в таком доме.

 

16 часов назад, Khudo сказал:

Я говорю про дома московской планировки на Ц--1 и Ц-2.

 

1

Share this post


Link to post
Share on other sites
1 час назад, Khudo сказал:

Но смежных комнат в этих квартирах тоже  нет, о чем говорили и DOS, и я.

Я к DOS-у тоже иногда прислушиваюсь, в теме где пожрать :rolleyes: Если Вы, оба, не видели чего-то, не означает, что этого нет :facepalme: к примеру НЛО :D

Короче, планировка 2-х комнатных квартир в кирпичных домах т.н. московская планировка РАЗНАЯ, и смежные комнаты, и раздельные, как на фото выше, и на фото ниже:

2-х ком.кв.кирпич.дом.москов.план.лоджия 2х6.комн.смежные.санузел разд..jpg

2-х ком.кв.кирпич.дом.москов.план.лоджия 2х6.комнаты и санузел раздельный.jpg

1

Share this post


Link to post
Share on other sites
10 hours ago, MAKLER said:

Я к DOS-у тоже иногда прислушиваюсь, в теме где пожрать :rolleyes: Если Вы, оба, не видели чего-то, не означает, что этого нет :facepalme: к примеру НЛО :D

Короче, планировка 2-х комнатных квартир в кирпичных домах т.н. московская планировка РАЗНАЯ, и смежные комнаты, и раздельные, как на фото выше, и на фото ниже:

2-х ком.кв.кирпич.дом.москов.план.лоджия 2х6.комн.смежные.санузел разд..jpg

2-х ком.кв.кирпич.дом.москов.план.лоджия 2х6.комнаты и санузел раздельный.jpg

Второй план на улучшенную хрушевку похож..

0

Share this post


Link to post
Share on other sites

Маклер как Сусанин, пытается всех запутать в мульоне схем каких-то и с упорством "местного работника лукойл" гнёт свою линию :crazy:

Разговор тока про дома на Цэбыр. Классические  москвичи и никаких смежных. Точка. У меня точь такая же была, недалеко от Педа. 

А так, и белорусские на Горького можно под москвичей подогнать и сказать - А если вы не знаете, так молчите :lol:

1

Share this post


Link to post
Share on other sites
20 минут назад, DOS сказал:

А так, и белорусские на Горького можно под москвичей подогнать и сказать - А если вы не знаете, так молчите 

у него все ленинградские, белорусские, свердловские всё = московские :lol:

0

Share this post


Link to post
Share on other sites
4 часа назад, MAKLER сказал:

Я к DOS-у тоже иногда прислушиваюсь

Зачем мне прислушиваться, если дома на Ц-1 и Ц-2 я знаю не понаслышке.

4 часа назад, MAKLER сказал:

в теме где пожрать :rolleyes: 

Зачем жрать, когда можно есть?

4 часа назад, MAKLER сказал:

Если Вы, оба, не видели чего-то, не означает, что этого нет :facepalme:

Еще раз. Мы оба говорили о конкретном районе

21 час назад, Khudo сказал:

Я говорю про дома московской планировки на Ц--1 и Ц-2. Там нет смежных комнат, и квартиры на первых этажах - с большими лоджиями.

 

В 11/17/2019 в 08:59, DOS сказал:

Весь Цэбыр 

 

4 часа назад, MAKLER сказал:

Короче, планировка 2-х комнатных квартир в кирпичных домах т.н. московская планировка РАЗНАЯ,

Короче, на Ц-1 и Ц-2  есть 2-х комнатные квартиры московской планировки со смежными комнатами?

0

Share this post


Link to post
Share on other sites

  • Recently Browsing   0 members

    No registered users viewing this page.