Jahongirman

Лучшее время для покупки/продажи квартир

59 588 posts in this topic

56 минут назад, DOS сказал:

Учитывая двушку Маклера за 34500, 40тыш

цены как на фархадском..за 2-ку

соседка еще одна срочно продает 3-ку

41 .000

у уезжает в свое гнездо на тезике

 

0

Share this post


Link to post
Share on other sites
5 минут назад, BUBUKA сказал:

цены как на фархадском..за 2-ку

У нас этот ценник с лоджией 2х6, панель, улучшенка, на Фархадском за эту сумму думаю хрущевка с 1.5х3 будет :facepalme:

1

Share this post


Link to post
Share on other sites
3 минуты назад, MAKLER сказал:

У нас этот ценник с лоджией 2х6, панель, улучшенка, на Фархадском за эту сумму думаю хрущевка с 1.5х3 будет :facepalme:

это про 9-этажки...

набирают популярность...срочно..

объявы с хрюшами...особенно зеркальными очень быстро исчезают

0

Share this post


Link to post
Share on other sites
24 minutes ago, BUBUKA said:

 

соседка еще одна срочно продает 3-ку

41 .000

у уезжает в свое гнездо на тезике

 

Локацию можно попросить в лс.

 

0

Share this post


Link to post
Share on other sites
9 минут назад, NNV сказал:

Локацию можно попросить в лс.

 

отправил

0

Share this post


Link to post
Share on other sites
51 минуту назад, BUBUKA сказал:

это про 9-этажки...

Хороший вариант, какой этаж ?

0

Share this post


Link to post
Share on other sites
5 минут назад, MAKLER сказал:

Хороший вариант, какой этаж ?

не торец

второй подъезд

3 этаж

0

Share this post


Link to post
Share on other sites
8 минут назад, BUBUKA сказал:

не торец

В 9-ти этажках торцевые 2-х комнатные квартиры в общем коридоре.

Отличный вариант, только одна спальня маленькая совсем :facepalme:

 

1.jpg

Из 3-ки отличная 2-ка получается, если 2 спальни объединить в одну большую:

2.jpg

2

Share this post


Link to post
Share on other sites
6 минут назад, MAKLER сказал:

В 9-ти этажках торцевые 2-х комнатные квартиры в общем коридоре.

Отличный вариант, только одна спальня маленькая совсем :facepalme:

2-ки пока нету..:rolleyes:

есть 3-ка....без общего коридора:D

0

Share this post


Link to post
Share on other sites
1 hour ago, MAKLER said:

Это скорее нижняя часть массива 

Пляяя, по карте СВ-2 и 3 выше этих твоих двух домов

 

0

Share this post


Link to post
Share on other sites
13 минут назад, DOS сказал:

Пляяя, по карте СВ-2 и 3 выше этих твоих двух домов

Во пляяя, какая карта :facepalme: карта для даунов, у нас один массив, Феруза (бывший Северо-Восток-2, с учетом, что С-В-1 никогда не было) напротив ЭКО и за Гинекологией, это все массив Феруза. А дома вдоль улицы официально имеют название улица Феруза (буквально недавно Кадырова) и улица Мирзо Улугбека. Эти дебилы меняют названия каждый год, а народ, и ты в т.ч. путаешь :lol:

И дома 7 и 9 расположены значительно выше остальных домов на нашем массиве, т.к. от бетонки до гинекологии дорога спускается вниз

1

Share this post


Link to post
Share on other sites
43 минуты назад, MAKLER сказал:

В 9-ти этажках торцевые 2-х комнатные квартиры в общем коридоре.

Отличный вариант, только одна спальня маленькая совсем :facepalme:

Из 3-ки отличная 2-ка получается, если 2 спальни объединить в одну большую:

Ну потому что там квадратура 2х комнатной квартиры, 65. Ну так поиздевались когда делали проект. 

Edited by freshman
0

Share this post


Link to post
Share on other sites
25 minutes ago, MAKLER said:

Во пляяя, какая карта 

Ты капец тормОз штоли? Если чел ни разу не был на СВ, откуда ему пля знать - какой дом выше, а какой ниже? Он тупо по карте будет судить - выше или ниже.

У нас (да и у русских тоже) в дом когда приходит гость, его сажают куда? Прально - вглубь гостиной, к изголовью стола. А где изголовье? Прально - там, где голова. Ты же не будешь спорить, что голова находится ниже туловище :D И пофик, что та часть гостиной может быть ниже прихожки, по отношению к уровню моря :crazy:     

1

Share this post


Link to post
Share on other sites
28 минут назад, freshman сказал:

Ну потому что там квадратура 2х комнатной квартиры, 65

62

0

Share this post


Link to post
Share on other sites
1 час назад, DOS сказал:

Ты капец тормОз штоли? Если чел ни разу не был на СВ, откуда ему пля знать - какой дом выше, а какой ниже? Он тупо по карте будет судить - выше или ниже

Да ты сам реальный тормоз :facepalme: или у тебя карта показывает расположение частей массива Феруза по отношению к уровню моря !? ;) СВ1 ниже массива СВ2, а СВ3 выше по уровню и СВ1, и СВ2 ? Тогда приношу свои извинения, но если нет у тебя такой карты, тогда чего споришь с тем, кто живет на этом массиве, кто лучше из нас двоих знает, что дома 7 и 9 расположены на подъеме ? :icon_evil:

1 час назад, BUBUKA сказал:

62

В общем коридоре в 2-х комнатной квартире квадратура меньше, чем в квартире с отдельным входом.

1

Share this post


Link to post
Share on other sites
21 минуту назад, MAKLER сказал:

В общем коридоре в 2-х комнатной квартире квадратура меньше, чем в квартире с отдельным входом.

точно...сорян

0

Share this post


Link to post
Share on other sites
6 часов назад, MAKLER сказал:

Вам 2/2/4 77-й серии 67 кв.м. на Карасу-1

У меня треха 77ая, 63 метров общая площадь :facepalme:

0

Share this post


Link to post
Share on other sites
9 часов назад, MAKLER сказал:

Да ты сам реальный тормоз :facepalme: или у тебя карта показывает расположение частей массива Феруза по отношению к уровню моря !? ;) СВ1 ниже массива СВ2, а СВ3 выше по уровню и СВ1, и СВ2 ? Тогда приношу свои извинения,

Общедоступный Эрф. :rofl:

photo_2021-02-28_08-15-29.jpg.b56a30c96b633175a2dbe233b99ac55e.jpg

 

 

1

Share this post


Link to post
Share on other sites
8 hours ago, Аргумент said:

У меня треха 77ая, 63 метров 

Точно 77я? В 77й трёшка 75кв

0

Share this post


Link to post
Share on other sites
1 час назад, Дмитрий Белый сказал:

Общедоступный Эрф. :rofl:

Ок, а теперь скажи, сколько покупателей квартир на массиве Феруза пользуются этой картой, чтобы заранее посмотреть расположение дома от уровня моря перед осмотром квартир ? :lol:

DOS спросил, почему мало пользуются спросом дома 7 и 9, я ответил, что дорога к дому идет на подъем, туда минимум минут 5 топать ножками, вверх, а если ещё с сумками :facepalme: а он мне по карте решил показал, какие дома выше или ниже :D мне, который живет здесь, который знает каждый уголок массива закрытыми глазами.

9 часов назад, Аргумент сказал:

У меня треха 77ая, 63 метров общая площадь :facepalme:

в 77-й серии одна особенность, точнее две, кирпичный дом, и из ванной комнаты окошко выходит на улицу.

Скорее всего лоджию не учли, сейчас считают и лоджию в общую площадь, т.о. + 12 кв. = 75, грубо так.

0

Share this post


Link to post
Share on other sites
1 hour ago, DOS said:

Точно 77я? В 77й трёшка 75кв

У меня были две квартиры 77й серии на одном массиве - одна в 67кв (без сушилки), другая в 72кв + сушилка. При чем квартиры (сами дома) отличались по длине. Во второй и зал и спальни были на полметра длинее.

1

Share this post


Link to post
Share on other sites
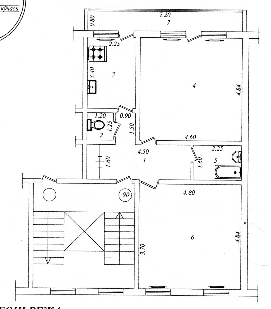
1 час назад, DOS сказал:

Точно 77я? В 77й трёшка 75кв

Не знаю как общую считают - со стенами или без? Я посчитал по общей площади комнат, суммировал. Вот план.

08ce476659bce91509bbb0633fe5ad0f.jpg

0

Share this post


Link to post
Share on other sites
11 minutes ago, MAKLER said:

а он мне по карте решил показал, какие дома выше или ниже 

Ты реально тормОз. Перечитай мой пост. Выше - имелось в виду выше на карте. Тупо верх (дальше) по карте, а не верх в небеса :crazy: 

Ты это..... тупо забей и забудь, раз живешь в одной всего плоскости и никак не можешь переключиться

3 minutes ago, Аргумент said:

Не знаю как общую считают - со стенами или без? 

77-я. Без лоджии посчитал

0

Share this post


Link to post
Share on other sites
11 минут назад, Dynamo сказал:

У меня были две квартиры 77й серии на одном массиве - одна в 67кв (без сушилки), другая в 72кв + сушилка. При чем квартиры (сами дома) отличались по длине. Во второй и зал и спальни были на полметра длинее.

У меня без сушилки. У бывш. супруги тоже 77-я, но с сушилкой, и площадь там побольше - 72 или 73 по паспорту.

3 минуты назад, DOS сказал:

Без лоджии посчитал

Как это без лоджии, с лоджией. Потому и удивляюсь, откуда 75 кв. люди берут.

0

Share this post


Link to post
Share on other sites
4 минуты назад, DOS сказал:

Ты реально тормОз. Перечитай мой пост. Выше - имелось в виду выше на карте. Тупо верх (дальше) по карте, а не верх в небеса :crazy:

Ты всё ещё продолжаешь тормозить ? :lol: Я русским языком сказал ИДТИ ПЕШКОМ ВВЕРХ, а ты стрелки переводишь...на карту. раньше нужно было грить, что ты карту имел ввиду, да и ваще, никто из покупателей не смотрит на карту массива Феруза, все смотрят на местность глазками, подход к дому, инфраструктуру, так что :facepalme:

11 минут назад, Аргумент сказал:

Не знаю как общую считают - со стенами или без? Я посчитал по общей площади комнат, суммировал. Вот план.

В домах советской постройки считают без учета стен, по факту. У Вас размер лоджии с ошибкой, там 5.70 минимум, а не 4.85

0

Share this post


Link to post
Share on other sites

  • Recently Browsing   0 members

    No registered users viewing this page.