tax

Типы жилых домов в Ташкенте

940 posts in this topic

В 30.11.2022 в 06:08, Игорь Весельчак сказал:

Типичный хрущ

Остаётся дождаться комментарий сапожника какого-нибудь из далёкой области по планировкам многоквартирных домов, и можно будет уходить на пенсию :lol:

В 01.12.2022 в 15:23, Игорь Весельчак сказал:

Там целый список серий под хрущёвку подходит. вплоть до 77 и "москвы"

Какой список, где со списком можно ознакомиться ?

 

 

В 25.11.2022 в 18:45, BredoGen сказал:

Подскажите...

Подсказываю...

Во-первых кухню на лоджию, что делать из бывшей кухни каждый смотрит со своей колокольни, детская, рабочий кабинет или столовая.

Затем закрыть дверь из зала в спальню (см.план) снести стену между коридором и узкой спальней, чуть уменьшить спальню, на 1-1,5 метра, прорубить дверь в большую спальню из квадратного коридора.

Это самый распространённый вариант перепланировки в панельных хрущёвках.

1.jpg

В 25.11.2022 в 22:51, BredoGen сказал:

Как умещать кухню на лоджии это конечно отдельный сложный вопрос, но просторная ванная манит. Жаль, если запрещено

Если 1-й этаж, то можно...кухню на лоджию 1,50х6,00, санузел с ванной перенести на бывшую кухню, чуть расширить и увеличить коридор:

 

3.jpg

Edited by MAKLER
1

Share this post


Link to post
Share on other sites
15 минут назад, MAKLER сказал:

Какой список, где со списком можно ознакомиться ?

многоквартирные дома, спроектированные с 57 по 69 годы. 

0

Share this post


Link to post
Share on other sites
10 минут назад, Игорь Весельчак сказал:

многоквартирные дома, спроектированные с 57 по 69 годы. 

т.е. панельные дома на 40 лет Победы, где сириниус снял квартиру, тоже считаются "хрущёвками" ?

К сведению, там панельные дома постройки 75-80-85 годов, лоджия 2х6, монолитные 16-ти этажки, панельные 9-ти этажки с лоджией 2х6, кирпичные дома т.н. 77-я серия. и галерейки 9-ти этажные. 

Хочу посмотреть твой список, где говорится, что на массиве 40 лет Победы дома классифицируются по категории "хрущёвка".

0

Share this post


Link to post
Share on other sites
20 минут назад, MAKLER сказал:

там панельные дома постройки 75-80-85 годов

Назови серию этих домов. 

21 минуту назад, MAKLER сказал:

панельные 9-ти этажки с лоджией 2х6

Здесь их зовут "улучшенная французская"

21 минуту назад, MAKLER сказал:

кирпичные дома т.н. 77-я серия. и галерейки 9-ти этажные. 

Это на каком массиве?

0

Share this post


Link to post
Share on other sites

у нас есть ресурс,где по кадастровому номеру можно узнать что-то о квартире? с авторизацией, пофиг

0

Share this post


Link to post
Share on other sites
34 минуты назад, Sirinius сказал:

у нас есть ресурс,где по кадастровому номеру можно узнать что-то о квартире? с авторизацией, пофиг

Для чего это вообще ?

1 час назад, Игорь Весельчак сказал:

Здесь их зовут "улучшенная французская"

Где здесь, и кто так называет ?

1 час назад, Игорь Весельчак сказал:

Это на каком массиве?

Я напомню, Вы ответили Сириусу на вопрос какая планировка в квартире, которую взял в аренду на массиве 40 лет Победы, Крестик:

 

В 28.11.2022 в 16:36, Sirinius сказал:

photo-2022-11-28-16-35-34.jpg

Подскажите название планировки, плз

 

В 30.11.2022 в 06:08, Игорь Весельчак сказал:

Типичный хрущ

 

В 30.11.2022 в 06:08, Игорь Весельчак сказал:

Типичный хрущ

Соот-но я говорю о массиве 40 лет Победы, район крестика, где Сириниус снимает квартиру, вроде 5-й этаж, последний. Меня месяц не было, могу чуть забыть.

0

Share this post


Link to post
Share on other sites
12 часов назад, MAKLER сказал:

Где здесь, и кто так называет ?

риэлторы в Ташкенте

12 часов назад, MAKLER сказал:

Я напомню, Вы ответили Сириусу на вопрос какая планировка в квартире, которую взял в аренду на массиве 40 лет Победы, Крестик:

Напомню, я спросил про кирпич 77 серии и 9 этажные галереи. Ибо сам некоторое недолгое время жил недалеко от нынешнего местожительства Sirinus и таких домов на стороне Крестика не помню. 77 серия, насколько я знаю, через дорогу расположена, а это уже Лисунова, армянские дома.

0

Share this post


Link to post
Share on other sites
1 час назад, Игорь Весельчак сказал:

77 серия, насколько я знаю, через дорогу расположена, а это уже Лисунова, армянские дома.

77-серия на первом квартале 40 лет победы (ныне Тузель-1) имеется. Немного на 4-ом ещё.

1 час назад, Игорь Весельчак сказал:

9 этажные галереи

9 этажка, галерея, сплошь из однокомнатных квартир одна -  в глубине, неподалеку от  152-школы, дом №33.

0

Share this post


Link to post
Share on other sites
Только что, NEO_KADAM сказал:

77-серия на первом квартале 40 лет победы (ныне Тузель-1) имеется. Немного на 4-ом ещё.

Возможно. Я на 2 жил - там ни 77, ни галереек не помню. 

0

Share this post


Link to post
Share on other sites
3 минуты назад, Игорь Весельчак сказал:

Я на 2 жил - там ни 77, ни галереек не помню. 

На 2 квартале 3 типа домов: 5 этажки панельные, 9 этажки панельные и несколько 12 этажек с электроплитами. Не считая общежития.

0

Share this post


Link to post
Share on other sites
Только что, NEO_KADAM сказал:

На 2 квартале 3 типа домов: 5 этажки панельные, 9 этажки панельные и несколько 12 этажек с электроплитами. Не считая общежития.

это я знаю. 5 этажки - хрущи, 9 этажки - улучшенные "французы", 12 этажки не знаю. 

0

Share this post


Link to post
Share on other sites
Только что, Игорь Весельчак сказал:

5 этажки - хрущи,

Нет, они не хрущевки.

Эти дома намного свежеее чем те, что на Лисунова 1-2-3-4

2

Share this post


Link to post
Share on other sites
Только что, NEO_KADAM сказал:

Нет, они не хрущевки.

Потому что построены в 80-х?

0

Share this post


Link to post
Share on other sites
19 минут назад, Игорь Весельчак сказал:

Потому что построены в 80-х?

Отчасти да, плюс планировки различаются.

0

Share this post


Link to post
Share on other sites
2 часа назад, NEO_KADAM сказал:

Отчасти да, плюс планировки различаются.

Под "хрущ" подходит целая серия панельных и кирпичных типовых "скоростроек", разработанных в годы его правления. "Брежневки" (что строили в 70-80-х) есть ничто иное, как модернизированные хрущи -планировки сильно не отличаются, чуть увеличены комнаты.

1

Share this post


Link to post
Share on other sites
1 minute ago, Игорь Весельчак said:

Под "хрущ" подходит целая серия панельных и кирпичных типовых "скоростроек", разработанных в годы его правления. "Брежневки" (что строили в 70-80-х) есть ничто иное, как модернизированные хрущи -планировки сильно не отличаются, чуть увеличены комнаты.

Согласен! И когда начинают говорить - это улучшенка или еще что-то, а не хрущ, я этого не понимаю. Да, в "улучшенках" комнаты чуть побольше, но сам смысл планировки у них одинаковый. Мне например она не нравится, как не нравится и т.н. "франция". Когда выбирал квартиру себе, одним из основных посылов было - не хрущ и не франция :)

1

Share this post


Link to post
Share on other sites
2 минуты назад, alexeyshs сказал:

 

Я в "москве" живу, тоже не нравится, откровенно говоря. Посматриваю на дома, но это в далёкой пока перспективе.

0

Share this post


Link to post
Share on other sites
18 часов назад, MAKLER сказал:

Для чего это вообще ?

краем уха слышал, что электронные кадастры обещали с этого года

4 часа назад, Игорь Весельчак сказал:

Возможно. Я на 2 жил - там ни 77, ни галереек не помню. 

тоже сейчас на Тузель-2, в типах домов не разбираюсь вообще)

0

Share this post


Link to post
Share on other sites
3 минуты назад, Sirinius сказал:

тоже сейчас на Тузель-2, в типах домов не разбираюсь вообще)

Я примерно понял, где ты - вот и удивляюсь, где там не хрущ построили внезапно:facepalme:

0

Share this post


Link to post
Share on other sites
4 часа назад, NEO_KADAM сказал:

несколько 12 этажек с электроплитами

была возможность взять там на 11-м этаже однушку, 50 квадратов, не успели, пришлось купить на ЮАР.  Так бы может и не продал свою квартиру :lol:  В Люберцах пользовался электроплитой, классная штука + когда гас свет в доме/массиве - плита продолжала работать, отдельное питание к ним шло

3 минуты назад, Игорь Весельчак сказал:

Я примерно понял, где ты - вот и удивляюсь, где там не хрущ построили внезапно:facepalme:

в принципе тут неплохо, загородная фазенда, все дела :lol::lol: чистый воздух.  Планировка только не фонтан

Кстати. Многие люди по возможности меняют советскую планировку под себя.

А бывает такое, чтоб кто-то делал себе советскую планировку? :lol:

0

Share this post


Link to post
Share on other sites
7 минут назад, Sirinius сказал:

А бывает такое, чтоб кто-то делал себе советскую планировку? :lol:

Наверняка только извращенцы :)

0

Share this post


Link to post
Share on other sites
8 часов назад, Игорь Весельчак сказал:

риэлторы в Ташкенте

Понятно, этих вообще можно не слушать, если многие улучшенную планировку за францию выдают :lol: Поэтому я и не удивлён, что такую грубую ошибку допустили в отношении улучшенной планировки у Сириниуса, называя хрущевкой.

8 часов назад, Игорь Весельчак сказал:

Напомню, я спросил про кирпич 77 серии и 9 этажные галереи. Ибо сам некоторое недолгое время жил недалеко от нынешнего местожительства Sirinus и таких домов на стороне Крестика не помню. 77 серия, насколько я знаю, через дорогу расположена, а это уже Лисунова, армянские дома.

Между Дока хлеб и Крестиком, внутри массива есть 1-2 9-ти этажки, галерейки, а 77-я серия остановка Галантерейка, бывшая, затем не доезжая до поста ГАИ поворачиваем направо, в сторону школы 282, так вот слева дома 1-8 все 77-й серии.

https://yandex.uz/maps/10335/tashkent/house/YkAYdQFmQEYBQFprfX54d3tnZw==/?ll=69.363454%2C41.295172&z=17

7 часов назад, NEO_KADAM сказал:

9 этажка, галерея, сплошь из однокомнатных квартир одна -  в глубине, неподалеку от  152-школы, дом №33.

Правильно, вот этот дом.

https://yandex.uz/maps/10335/tashkent/house/YkAYdQJpT0AGQFprfX9xcXhkYQ==/?ll=69.359334%2C41.298117&z=17

7 часов назад, Игорь Весельчак сказал:

это я знаю. 5 этажки - хрущи, 9 этажки - улучшенные "французы", 12 этажки не знаю. 

5-ти этажки - улучшенная планировка

9-ти этажки - улучшенная планировка

12-ти этажки - монолитные дома, электроплита.

0

Share this post


Link to post
Share on other sites
6 минут назад, MAKLER сказал:

 

Что такое "улучшенная планировка"? Улучшенная от чего/кого/зачем?

0

Share this post


Link to post
Share on other sites
3 часа назад, Игорь Весельчак сказал:

Под "хрущ" подходит целая серия панельных и кирпичных типовых "скоростроек", разработанных в годы его правления. "Брежневки" (что строили в 70-80-х) есть ничто иное, как модернизированные хрущи -планировки сильно не отличаются, чуть увеличены комнаты.

Не подходят, смотрим по порядку.

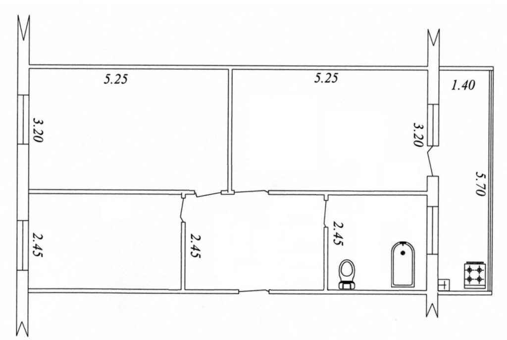
1 - панель, хрущевка

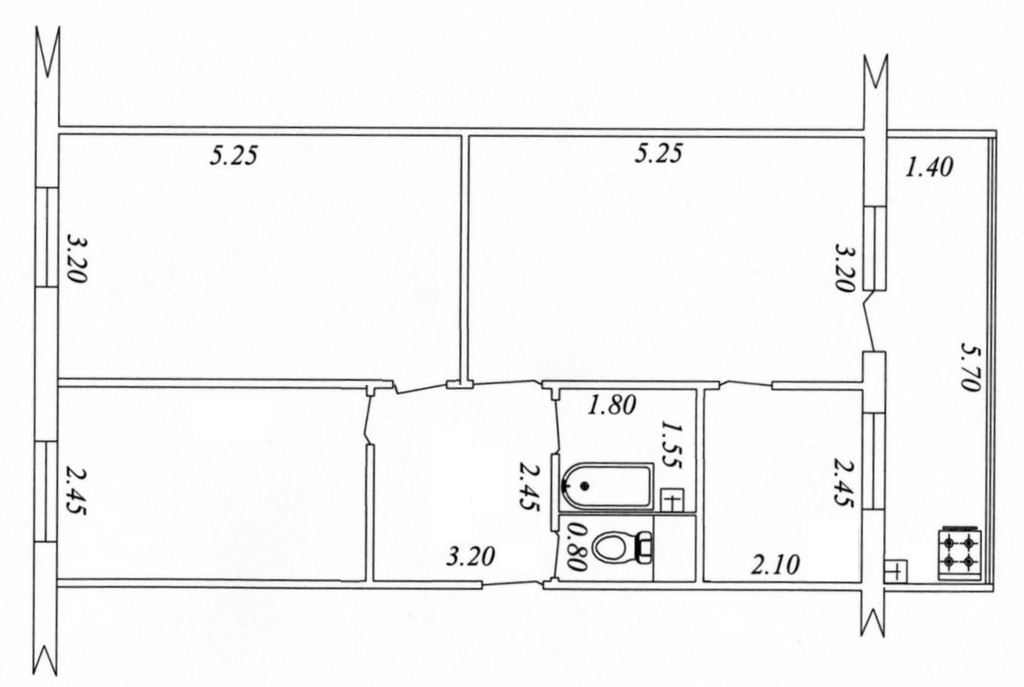
2 - панель, улучшенная планировка

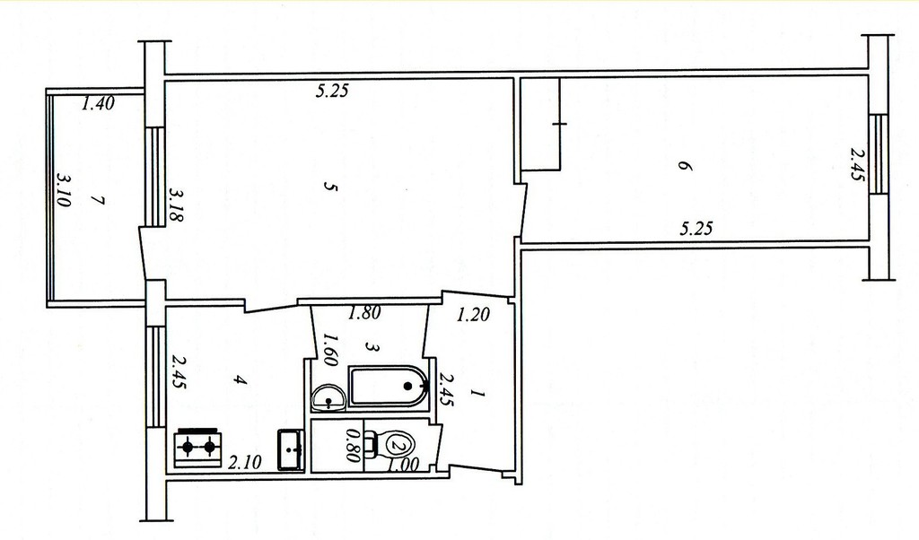
3 - панель, франция.

 

 

2-ком панель хрущевка 1.5х3 комнаты 29,6 кв.м. дверь налево (копия).jpg

2-ком панель улучшенная 2х6 дверь направо (копия).jpg

2-ком панель франция 4-х этажка дверь налево (копия).jpg

4 минуты назад, Игорь Весельчак сказал:

Что такое "улучшенная планировка"? Улучшенная от чего/кого/зачем?

Улучшенная к предыдущей планировке, хрущевка 46 кв.м., балкон 1.5х3,, а улучшенная 55-56, лоджия 2х6, по плану выше хорошо видно.

1

Share this post


Link to post
Share on other sites
4 минуты назад, MAKLER сказал:

1 - панель, хрущевка

Хрущёвка - это не только "ленинградка". Там 13 серий с разными планировками. Из них минимум пять встречаются в Ташкенте.

17 минут назад, MAKLER сказал:

2 - панель, улучшенная планировка

Улучшенная от какой?

18 минут назад, MAKLER сказал:

3 - панель, франция.

Это не "франция". Зал не квадратный, малогабаритный, балкон не в размерах 0.8х7 метров. 

19 минут назад, MAKLER сказал:

Улучшенная к предыдущей планировке, хрущевка 46 кв.м., балкон 1.5х3,, а улучшенная 55-56, лоджия 2х6, по плану выше хорошо видно.

"Московская" - это улучшенная или предыдущая планировка?

0

Share this post


Link to post
Share on other sites

  • Recently Browsing   0 members

    No registered users viewing this page.