tax

Типы жилых домов в Ташкенте

940 posts in this topic

34 minutes ago, MAKLER said:

Между Дока хлеб и Крестиком, внутри массива есть 1-2 9-ти этажки, галерейки, а 77-я серия остановка Галантерейка, бывшая, затем не доезжая до поста ГАИ поворачиваем направо, в сторону школы 282, так вот слева дома 1-8 все 77-й серии.

вроде разговор шел за 2ой квартал, а ты сейчас про 4ый говоришь.

4 minutes ago, Игорь Весельчак said:

Улучшенная от какой?

все верно, улучшенная хрущевка :)

0

Share this post


Link to post
Share on other sites
2 минуты назад, alexeyshs сказал:

вроде разговор шел за 2ой квартал, а ты сейчас про 4ый говоришь.

Я не знаю на каком квартале Сириниус снял 1-ку, он говорил район крестика, я и пишу район крестика, +/- на этой стороне, а не напротивчерез бетонку, где Лисунова начинается.

0

Share this post


Link to post
Share on other sites
9 минут назад, Игорь Весельчак сказал:

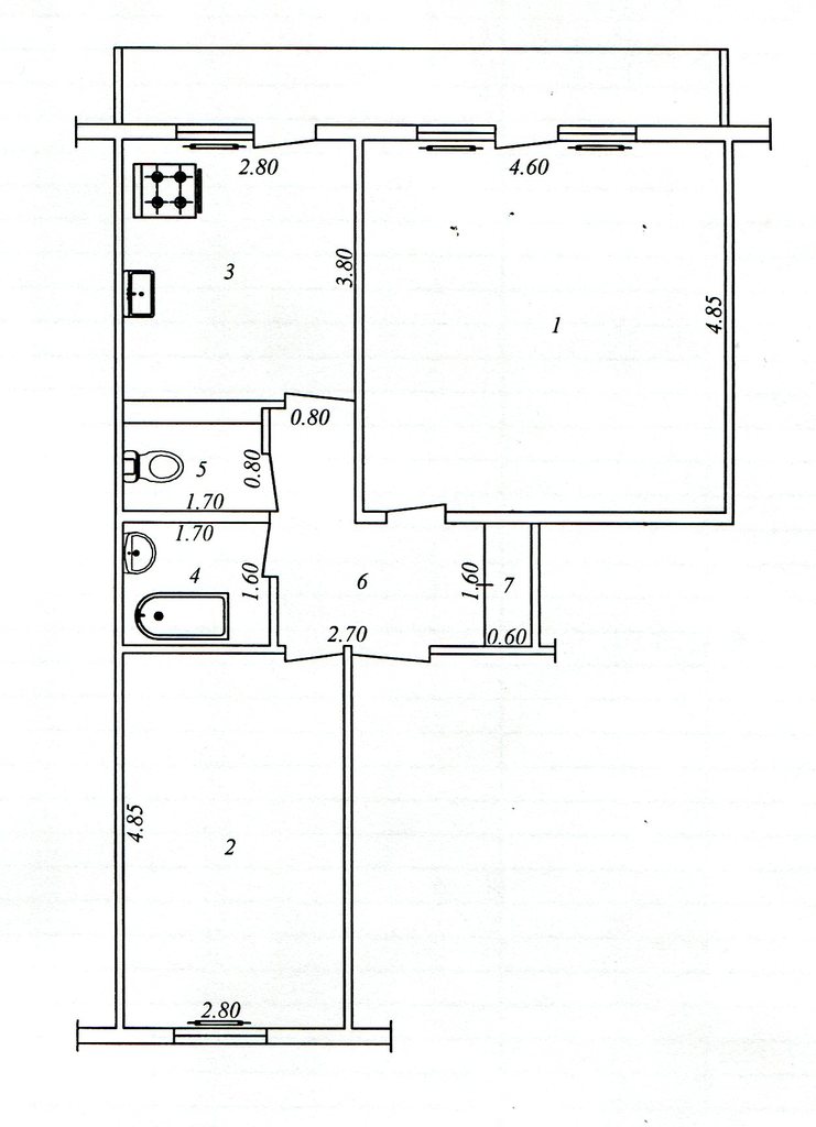
Хрущёвка - это не только "ленинградка". Там 13 серий с разными планировками. Из них минимум пять встречаются в Ташкенте.

Улучшенная от какой?

Это не "франция". Зал не квадратный, малогабаритный, балкон не в размерах 0.8х7 метров. 

"Московская" - это улучшенная или предыдущая планировка?

Мы живём в Ташкенте, Узбекистане, соот-но говорим и пишет про Узбекистан, какая планировка на бывшем СССР меня не волнует.

Улучшенная от предыдущей, т.е. панель хрущевка 46 кв.м. с балконом 1.5х3 есстно хуже по планировке и удобствам проживания, чем планировка которая пошла по проекту позже, т.н. улучшенная, там и общая 54-56 кв.м., и лоджия 2х6, так понятно ?

Ты не все типа французской планировки знаешь, наивно полагая, что во франции зал должен быть 4.65х4.85, маклера называют 5х5, франция 4-х этажная отличается от франции в 9-ти этажках.

Вот тебе другая планировки 4-х этажной франции, Ю-А-7 квартал

 

2-ком панель франция 4-х этажка дверь направо (копия).jpg

3 часа назад, Sirinius сказал:

краем уха слышал, что электронные кадастры обещали с этого года

заходим на сайт davreestr.uz, вводи ключ, затем кадастровый номер или ПИНФЛ физ.лица и получаем всю информацию по жилому объекту.

другой вариант, сканируем кюар код с кадастра, дальше также.

1

Share this post


Link to post
Share on other sites
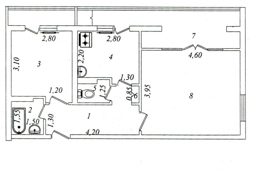
20 минут назад, Игорь Весельчак сказал:

Это не "франция". Зал не квадратный, малогабаритный, балкон не в размерах 0.8х7 метров. 

Поэтому я сказал ранее, в тему ещё сапожника не хватает, который "очень хорошо" разбирается в планировках многоквартирных домов в Ташкенте :lol:

1 - франция 4-х этажка (массив Ялангач)

2 - франция 4-х этажка (Юнусабад)

3 - франция 9-ти этажка (отдельный вход)

4 - франция 9-ти этажка (общий коридор)

 

2-ком панель франция 4-х этажка дверь налево (копия).jpg

2-ком панель франция 4-х этажка дверь направо (копия).jpg

2-ком панель 9-ти этажка зал 4.85х4.65 отдельный вход дверь налево (копия).jpg

2-ком панель 9-ти этажка зал 4.80х4.65 общий коридор дверь направо (вариант 3) (копия).jpg

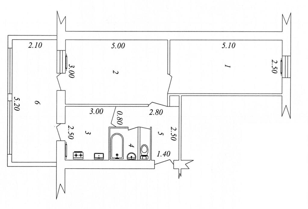
26 минут назад, Игорь Весельчак сказал:

"Московская" - это улучшенная или предыдущая планировка?

Московская планировка конечно лучше предыдущей, хрущевки:

1 - москва

2 - хрущевка

2-ком кирпич москва смежные раздельный 2х6 дверь налево (копия).jpg

2-ком кирпич хрущевка смежные совмещен 2х6 дверь направо (копия).jpg

0

Share this post


Link to post
Share on other sites
29 минут назад, Игорь Весельчак сказал:

 

Будешь дальше со мной спорить ? :lol:

У меня большая коллекция планировок отсортированы по полочкам, от 1 до 5-ти комнатных квартир, панель, кирпич, хрущевки, франция, улучшенки, 77-я серия, монолит, спецплан, смежные, раздельные, на изгибе дома :rolleyes:

Больше 2-х и 3-х комнатные, много не разобрал ещё по типу планировки:

1-ком.jpg

2-ком.jpg

3-ком.jpg

4-ком.jpg

5-ком.jpg

3

Share this post


Link to post
Share on other sites
57 минут назад, MAKLER сказал:

улучшенная, там и общая 54-56 кв.м., и лоджия 2х6

хм.. у меня 45 квадратов и лоджия 2х6.5  (цифра из плана)

59 минут назад, MAKLER сказал:

заходим на сайт davreestr.uz, вводи ключ, затем кадастровый номер или ПИНФЛ физ.лица и получаем всю информацию по жилому объекту.

другой вариант, сканируем кюар код с кадастра, дальше также.

спасибо, ща проверим, что там

0

Share this post


Link to post
Share on other sites
8 минут назад, Sirinius сказал:

хм.. у меня 45 квадратов и лоджия 2х6.5  (цифра из плана)

Согласно вашему плану, Вы снимаете квартиру в панельном доме, вроде на последнем этаже в  5-ти этажке, улучшенная планировка, лоджия 2х6, общая ~ 45 кв.м.

Такие 1-комнатные квартиры котируются по цене 2-х комнатных, панельки, хрущевки, балкон 1.50х3, там общая 45-46 кв.м.

К примеру у нас на массиве они так оцениваются, по одинаковой стоимости.

11 минут назад, Sirinius сказал:

спасибо, ща проверим, что там

А что проверять, всё есть в правоустанавливающем документе на квартиру. План на квартиру с размерами и расположением комнат там точно нет, это за дополнительную оплату сделали.

1

Share this post


Link to post
Share on other sites
4 минуты назад, MAKLER сказал:

А что проверять, всё есть в правоустанавливающем документе на квартиру. План на квартиру с размерами и расположением комнат там точно нет, это за дополнительную оплату сделали.

допплата так доплата, не страшно. Главное, чтоб была возможность у владельцев всегда скачать кадастр

0

Share this post


Link to post
Share on other sites
1 минуту назад, Sirinius сказал:

допплата так доплата, не страшно. Главное, чтоб была возможность у владельцев всегда скачать кадастр

Это выписка, подтверждает право собственности. Оно в my gov в любое время можно скачать, если оформление было не так давно. 

В старых, где в davreest не показывает дату оформления, нельзя скачать. 

0

Share this post


Link to post
Share on other sites
20 минут назад, freshman сказал:

Это выписка, подтверждает право собственности. Оно в my gov в любое время можно скачать, если оформление было не так давно. 

В старых, где в davreest не показывает дату оформления, нельзя скачать. 

посмотрел, да. ничего полезного и плана нет

0

Share this post


Link to post
Share on other sites
2 минуты назад, Sirinius сказал:

посмотрел, да. ничего полезного и плана нет

О чём я и говорил, если раньше за меньшую сумму делали зелёную книжку где была вся информация по каждому помещению квартиры, вкл. план квартиры,  то сейчас за большую цену один листочек выдают :lol: Развели нас.

Edited by MAKLER
1

Share this post


Link to post
Share on other sites
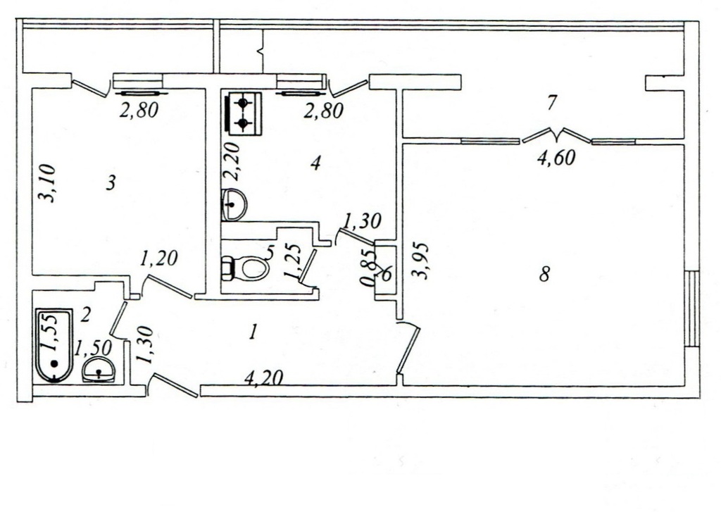
2 часа назад, Игорь Весельчак сказал:

Это не "франция". Зал не квадратный, малогабаритный, балкон не в размерах 0.8х7 метров. 

"Франция", 4-х этажная.

0

Share this post


Link to post
Share on other sites
2 часа назад, MAKLER сказал:

Будешь дальше со мной спорить ? :lol:

А есть смысл, если ты даже серию дома назвать не можешь? Хрущёвка и хрущёвка - больше никаких объяснений.

1 час назад, Khudo сказал:

"Франция", 4-х этажная.

Это 464 серия в одной из модификаций, разработка Гипростройиндустрии в 58-59 гг.

0

Share this post


Link to post
Share on other sites
1 час назад, Игорь Весельчак сказал:

Это 464 серия в одной из модификаций, разработка Гипростройиндустрии в 58-59 гг.

Не поделитесь ссылкой, где можно посмотреть, что такая планировка, назваемая в народе "французской", относится к модификации 464-й серии? У меня не получается найти...

464 и 1-464 - это одна и та же серия, или разные? Тут и тут, вроде, нет похожей планировки. Другого не получилось найти по словам "хрущевка" и "464 серия и ее модификации.

 

0

Share this post


Link to post
Share on other sites
9 часов назад, Khudo сказал:

Не поделитесь ссылкой, где можно посмотреть, что такая планировка, назваемая в народе "французской", относится к модификации 464-й серии? У меня не получается найти...

я это давно учил, по советским справочникам, и 464 не относится к франции

9 часов назад, Khudo сказал:

Тут и тут, вроде, нет похожей планировки

Я и говорю - модификация.

0

Share this post


Link to post
Share on other sites
12 часов назад, Игорь Весельчак сказал:

А есть смысл, если ты даже серию дома назвать не можешь? Хрущёвка и хрущёвка - больше никаких объяснений.

Ты такой прикольный :smekh: Звонит DOS к примеру по объявлению, спрашивает планировку квартиры, а я ему, радостно так, Серия К, проект 1950 года, или это Серия 335 (проект 1956 года, улучшенная в 1968-м)  :lol:

Минимум DOS, покрутит у виска в мою сторону, а максимум...и пойдёт искать другого посредника, который ДОСТУПНЫМ ЯЗЫКОМ ОБЪЯСНИТ планировку квартиры.

54 минуты назад, Игорь Весельчак сказал:

я это давно учил, по советским справочникам, и 464 не относится к франции

Я и говорю - модификация.

Так и в Узбекистане, продавцы объясняют на ДОСТУПНОМ покупателю языке, ты в кругу инженеров и строителей общайся по книжкам, людям нужно по простому, доступно и понятно.

Edited by MAKLER
2

Share this post


Link to post
Share on other sites
6 минут назад, MAKLER сказал:

Минимум DOS, покрутит у виска в мою сторону, а максимум...

Он и без этого может, я уверен

7 минут назад, MAKLER сказал:

ты в кругу инженеров и строителей общайся по книжкам

Так я с тобой общаюсь, с человеком, который должен это знать.

А строительство, инженерия и архитектура зданий - не моя работа, хоть и косвенно связанная.

1

Share this post


Link to post
Share on other sites
3 минуты назад, Игорь Весельчак сказал:

Он и без этого может, я уверен

Господи :facepalme: пусть это будет не DOS, а один из сотни тысяч жителей Ташкента, я про жителей отдалённых областей вообще молчу.

Я лучше твоего знаю, как отвечать мне, и как отвечают посредники покупателям квартиры. К 185 или улучшенная планировка.

 

ЗЫ Я не учу тебя ремонтировать кондиционеры, или продавать их, так и ты, когда заходишь в чужой монастырь. свой самовар дома оставь Не поймут тебя, не поймут. И палец у виска это самое безобидное будет выражение. :lol:

0

Share this post


Link to post
Share on other sites
8 минут назад, MAKLER сказал:

Я не учу тебя ремонтировать кондиционеры, или продавать их, так и ты, когда заходишь в чужой монастырь. свой самовар дома оставь

В монастырь с самоварами не ходят :lol:

А так - я не только кондиционерами интересуюсь, обращайся - чем смогу, помогу.

0

Share this post


Link to post
Share on other sites
29 minutes ago, MAKLER said:

DOS покрутит у виска в мою сторону

И ведро непечатных фраз вдогонку :D

 

12 minutes ago, MAKLER said:

пусть это будет не DOS

Ну вот. Тока я начал в роль входить:)

А так, Маклер прав. Простому обывателю нафик все эти цифры не нужны. Это сугубо узкоспециализорванная тема для таких же узких специалистов. 

1

Share this post


Link to post
Share on other sites
9 часов назад, Игорь Весельчак сказал:

я это давно учил, по советским справочникам

Названием справочников не поделитесь? 

9 часов назад, Игорь Весельчак сказал:

и 464 не относится к франции

К какой же серии тогда относится "франция"? И почему у нас такие дома и планировки  большинство жителей  называют "францией"?

9 часов назад, Игорь Весельчак сказал:

Я и говорю - модификация.

По ссылкам выше есть не все модификации серии 1-464? Поиск в интернете других модификаций не выдает...

0

Share this post


Link to post
Share on other sites
1 минуту назад, Khudo сказал:

Названием справочников не поделитесь? 

Нет, ибо было это лет эдак 8-9 назад.

2 минуты назад, Khudo сказал:

К какой же серии тогда относится "франция"? И почему у нас такие дома и планировки  большинство жителей  называют "францией"?

Потому что так проще © MAKLER

2 минуты назад, Khudo сказал:

По ссылкам выше есть не все модификации серии 1-464? Поиск в интернете других модификаций не выдает...

Модификации могут быть и местными - с учётом климата, сейсмики и т.д. В любом случае искать придётся долго и муторно.

0

Share this post


Link to post
Share on other sites
15 minutes ago, Khudo said:

К какой же серии тогда относится "франция"? 

69 :D

1

Share this post


Link to post
Share on other sites
В 12/8/2022 в 17:12, MAKLER сказал:

делали зелёную книжку где была вся информация по каждому помещению квартиры, вкл. план квартиры

В зеленой книжке указывали серию домов (типа 1-464)? 

0

Share this post


Link to post
Share on other sites

фиг поймешь, как узнать дату постройки дома. надо старожилов поспрашивать)

0

Share this post


Link to post
Share on other sites

  • Recently Browsing   0 members

    No registered users viewing this page.