Posted 27.05.2021 07:54 (edited) . Edited 27.05.2021 07:57 by arteto 0 Share this post Link to post Share on other sites
Posted 27.05.2021 12:30 9 часов назад, ЕленаСергеевна сказал: Подскажите - где можно посмотреть технический план типовой 9ти этажки, чтобы чайнику понять как идут вентиляционные шахты например... какие стены несущие... в тсж может быть такой план? Такой план может быть в Ташжилпроекте, был там много лет назад, после гост. Россия в сторону магазина Океан, первый или второй поворот направо, метров 100, здание по правой стороне. В ТЧСЖ такого плана точно нет. По поводу реконструкции в квартире (если ничего е изменилось): Цитата 5. В целях повышения удобств проживания разрешается проведение нижеследующих работ по реконструкции, перепланировки и переоборудованию помещений: перепланировка подсобных помещений; установка дополнительных перегородок с целью выделения отдельных комнат или их изоляция от смежных комнат; перестановка перегородок с целью получения более удобной планировки комнат; устройство новых дверных проемов (кроме случаев, указанных в п. 16) и заделка существующих, а также изменения направления открывания дверей; расширение существующих и пробивка новых оконных проемов, а также заделка существующих в жилых комнатах и подсобных помещениях (кроме случаев, указанных в п. 16); перестановка отопительных и санитарно-технических приборов (с соблюдением требований действующих норм); установка на утепленной лоджии отопительных приборов, не нарушающих гидравлического равновесия системы отопления многоквартирного жилого дома и согласованных с поставщиком тепловой энергии, с включением лоджии в отапливаемую площадь квартиры. Цитата 16. Не допускается: перепланировка с устройством санитарно-технического узла непосредственно над жилыми комнатами и кухней; переустройства с превышением расчетных нагрузок на плиты перекрытия; переустройства, связанные с изменением фундаментов, прочностных и жесткостных характеристик элементов каркаса или несущего остова здания; устройство и заделка проемов в капитальных стенах, разделяющих здание на секции или в перегородках, являющихся противопожарными; установка перегородок, упирающихся одним краем в оконный проем; выполнять работы, связанные с повреждением ригелей, балок и прогонов, ослаблением несущей способности отдельных опор, нарушением конструкций, крыш и кровель, нарушением монолитности перекрытий и целостности гидроизоляции в санитарных узлах, без проведения мероприятий по восстановлению и усилению конструкций, предусмотренных проектом; производить работы, влекущие за собой нарушение тяги или закрытие вентиляционных, дымовых и газовых каналов, проходящих в стенах: устройство дымоходов из железных труб в помещениях и перекидных боровов в чердаках; устройство входа в туалетные и ванные из кухни; устройство отопления лоджий с изменением проектного положения стояков системы центрального отопления; расположение входа в жилые комнаты непосредственно с улицы или лестничной клетки; переустройства, связанные с разрушением или нарушением технических характеристик общедомовых инженерных сетей (водо-, газо-, тепло-, электроснабжения и связи) и систем вентиляции; переустройства, связанные с изменением фасада здания, не согласованные с главным архитектором города или района 1 Share this post Link to post Share on other sites
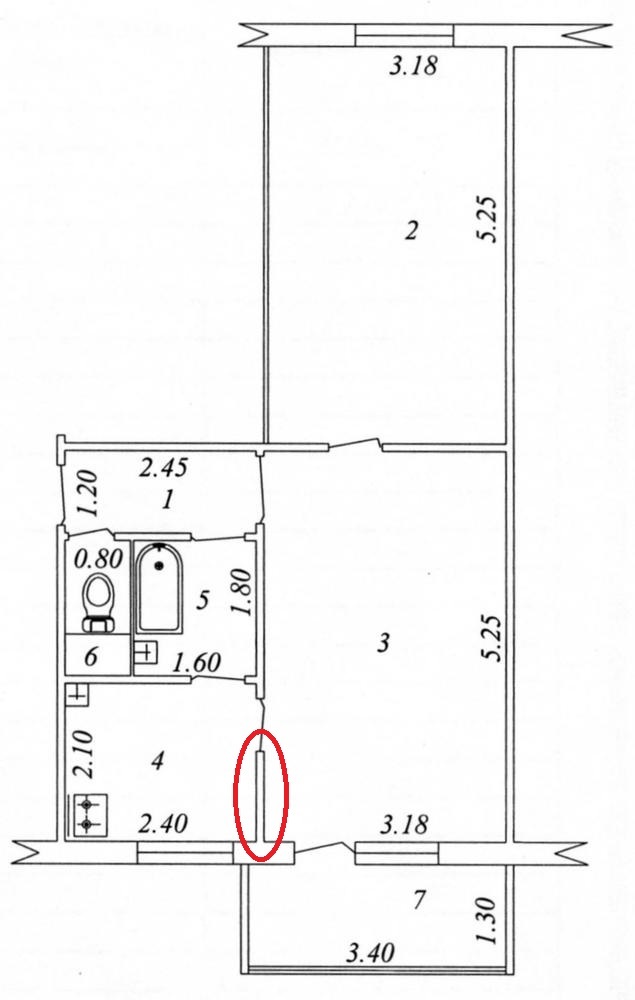
Posted 25.11.2021 14:16 (edited) Вопрос знатокам возможен ли снос части стены в панельной пятиэтажке? Edited 25.11.2021 14:16 by Георгий_1980 0 Share this post Link to post Share on other sites
Posted 25.11.2021 14:27 9 минут назад, Георгий_1980 сказал: Вопрос знатокам возможен ли снос части стены в панельной пятиэтажке? исходя из плана..3+2.....а .плита потолочная пустотка 6 метров значит эта стенка не несущая а скорее всего в пол кирпича... 0 Share this post Link to post Share on other sites
Posted 25.11.2021 14:28 (edited) дом панельный Edited 25.11.2021 14:28 by Георгий_1980 0 Share this post Link to post Share on other sites
Posted 25.11.2021 14:37 7 минут назад, Георгий_1980 сказал: дом панельный внутри панельных домов часто бывает что стенки не несущие тоже из простого кирпича 0 Share this post Link to post Share on other sites
Posted 25.11.2021 16:19 (edited) 2 часа назад, Георгий_1980 сказал: Вопрос знатокам возможен ли снос части стены в панельной пятиэтажке? Нет. Это возможно несущая стена. Я бы ее не стал трогать. В этих домах плиты перекрытия сплошные размером на комнату. Не пустотные. То есть 3:5 и 2:5. Стены поперечные может быть самонесущие, продольная и наружние продольные - несущие. Edited 25.11.2021 16:22 by Рассел Вещий 0 Share this post Link to post Share on other sites
Posted 25.11.2021 16:23 1 час назад, BUBUKA сказал: внутри панельных домов часто бывает что стенки не несущие тоже из простого кирпича В этой серии нет из кирпича ничего. 1 час назад, BUBUKA сказал: скорее всего в пол кирпича... По толщине - да. Примерно 10 см. 1 Share this post Link to post Share on other sites
Posted 25.11.2021 16:25 (edited) 6 minutes ago, Рассел Вещий said: Это возможно несущая стена Вряд ли. Поперечные стены несущие. Внешние основные, одна внутренняя между комнатами - второстепенная. Но плиты и по ней проходят. Вроде так. Edited 25.11.2021 16:25 by DOS 1 Share this post Link to post Share on other sites
Posted 25.11.2021 16:26 Только что, DOS сказал: Вряд ли. Поперечные стены несущие. Внешние основные, одна внутренняя между комнатами - втрлстеаенная. Но плиты и по ней проходят. Вроде так. Согласен с вами. 1 Share this post Link to post Share on other sites
Posted 25.11.2021 16:29 (edited) Даже если убрать стенку, полностью убрать её нельзя из за особенностей конструкции стыков панелей. Там идёт уже заливка цементом и сварка арматуры, выступающей из стен. Этим кстати и объясняется кривизна углов в панельных домах. Выравнивать их нельзя. Edited 25.11.2021 16:31 by Рассел Вещий 1 Share this post Link to post Share on other sites
Posted 25.11.2021 19:10 4 часа назад, Георгий_1980 сказал: Вопрос знатокам возможен ли снос части стены в панельной пятиэтажке? в панельках так. Несущие жб стены от 14см и выше. Самонесущие жб толщиной 6-8 см. если толщина 6-8 см то ломаем. Насколько вижу по планировке, это несущая стена, ломать нельзя. Самонесущие между туалетом и ванной и кухней 2 Share this post Link to post Share on other sites
Posted 26.11.2021 04:10 8 hours ago, vladfile said: Насколько вижу по планировке, это несущая стена Из-за ответвления оной от главной несущей? 1 Share this post Link to post Share on other sites
Posted 26.11.2021 18:06 13 часов назад, DOS сказал: Из-за ответвления оной от главной несущей? воочию знаю эти дома. одна из разновидностей панельных хрущевок 0 Share this post Link to post Share on other sites
Posted 26.11.2021 19:36 В 11/25/2021 в 19:16, Георгий_1980 сказал: Вопрос знатокам возможен ли снос части стены в панельной пятиэтажке? А зачем? 0 Share this post Link to post Share on other sites
Posted 27.11.2021 03:33 (edited) 7 часов назад, err сказал: А зачем? студию чел хочет.... проще было дверь на "кухню" расширить хотя кухня возможно давно на балкон вынес.. там впритык малая плита и раковина помещаются и арку дугой вырезать до розетки перфоратором болгарой тоже можно...но пыли будет.... Edited 27.11.2021 03:35 by BUBUKA 0 Share this post Link to post Share on other sites
Posted 27.11.2021 08:15 В 11/25/2021 в 19:16, Георгий_1980 сказал: Вопрос знатокам возможен ли снос части стены в панельной пятиэтажке? В кухню через ванну? что за планировка? 0 Share this post Link to post Share on other sites
Posted 27.11.2021 08:21 5 minutes ago, freshman said: что за планировка? Классическая хрюшка 4 Share this post Link to post Share on other sites
Posted 05.03.2022 08:59 Всем привет. Вопрос к знатокам конструкций домов. Какие стены являются несущими, а какие можно безболезненно сносить в домах данной планировки? (см. приаттаченную картинку) Речь про 9 этажки на ЮА-4, которые не франция. 0 Share this post Link to post Share on other sites
Posted 05.03.2022 09:42 34 минуты назад, Immergast сказал: Всем привет. Вопрос к знатокам конструкций домов. Какие стены являются несущими, а какие можно безболезненно сносить в домах данной планировки? (см. приаттаченную картинку) Речь про 9 этажки на ЮА-4, которые не франция. По плану не видно где несущая, а где перегородка, кроме тех, что уже закрасил, которые можно сносить...Возможно, что местами идет монолит. Снимите шпатлевку с потолка, посмотрите на продольные швы плит перекрытия: 0 Share this post Link to post Share on other sites
Posted 05.03.2022 10:19 28 minutes ago, MAKLER said: По плану не видно где несущая, а где перегородка, кроме тех, что уже закрасил, которые можно сносить...Возможно, что местами идет монолит. Слышал мнение, что у данных домов несущими являются внешние и подъездные стены. Внутренние стены, в основном, являются перегородками. На сколько это далеко от истины? Ну и заодно вопрос, как можно в теории и желательно на практике защититься от имбецильных соседей с девиантными фантазиями в ремонте? Переезд в собственный дом конечно нормальный вариант, но во-первых дороже раза так в 2 от текущей стоимости рассматриваемой квартиры и так же не лишен своих "но", "если". 0 Share this post Link to post Share on other sites
Posted 05.03.2022 10:31 10 минут назад, Immergast сказал: Ну и заодно вопрос, как можно в теории и желательно на практике защититься от имбецильных соседей с девиантными фантазиями в ремонте? Думаете, что соседи снесли несущие стены, пишите жалобу в БТИ, Хокимият, Кабинет министров, аппарат Президента. 0 Share this post Link to post Share on other sites
Posted 05.03.2022 12:05 1 hour ago, MAKLER said: Думаете, что соседи снесли несущие стены, пишите жалобу в БТИ, Хокимият, Кабинет министров, аппарат Президента. Ясно. Спасибо. Значит почти никак. 1 Share this post Link to post Share on other sites
Posted 03.11.2022 16:44 Наверное уместно будет задать мой вопрос в этой теме) Когда решали вопросы по отоплению, председатель правления сказала мне что типа так как моя квартира "торцевая" у нас в плане первоначально в зале предусмотрены 2 батареи. Что считается торцевой квартирой?) Наш 9ти этажный панельный дом состоит из 4х подъездов. 2 подъезда типа одно целое и имеют отдельный сток в канализацию например. Я живу во 2 подъезде и моя стена граничит со стеной 3 подъезда. Но там я понимаю есть некое расстояние. Поэтому моя квартира считается торцевой.. это правильное понимание вопроса торцевая квартира Председателем? 0 Share this post Link to post Share on other sites
Posted 03.11.2022 17:10 24 minutes ago, ЕленаСергеевна said: это правильное понимание вопроса торцевая квартира Председателем? Видать у тя двух корпусный дом с зазором в 10-15см, грубо, между корпусами. Этого достаточно, чтобы хату считать торцевой 1 Share this post Link to post Share on other sites