Posted 05.11.2019 12:06 (edited) 14 minutes ago, NeTrOn said: Плавно вернемся к теме покупки новостроек хотя по-моему на форуме мало кому это интересно Бонусом при покупке квартиры в жк Парисиен, был полностью рабочий и дизаин проект, поднятия внутренних перегородок по этому проекту и штукатурка стен. На прошлый недели позвонили с ГХ и пригласили для начало составления проекта. Вот так будет разделена квартирка на 68квадратов : вот так было Поздравляю с покупкой. Расскажите, что почем? У них вроде очень хорошие цены были после постройки трассы. А где какие комнаты? На плане не видно. Это двушка? В кухню вход из зала? Или во вторую комнату вход из зала? А где балкон там будет Кухня? А почему вам вариант застройщика не понравился? Там все комнаты раздельно Edited 05.11.2019 12:07 by Anel 0 Share this post Link to post Share on other sites
Posted 05.11.2019 12:10 2 minutes ago, Anel said: Поздравляю с покупкой. Расскажите, что почем? У них вроде очень хорошие цены были после постройки трассы. Спасибо. Я еще в начале прошлого года оплачивал. По тогдашнему курсу было около 800$ за квадрат 1 Share this post Link to post Share on other sites
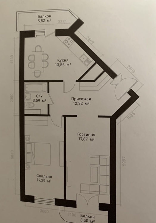
Posted 05.11.2019 12:12 (edited) 20 минут назад, NeTrOn сказал: вот так было изначально аналогичная квартира в каталоге Голден хоуса: Первый проект мне больше понравился. Только гардеробную в спальню добавил. Edited 05.11.2019 12:13 by Немой 4 Share this post Link to post Share on other sites
Posted 05.11.2019 12:16 4 minutes ago, Anel said: А где какие комнаты? На плане не видно. Это двушка? В кухню вход из зала? Или во вторую кухню вход из зала? А где балкон там будет Кухня? А почему вам вариант застройщика не понравился? Там все комнаты раздельно Изначально из за маленькой квадратуры хотел что то типа студийки, прихожка с гостиной теперь одна комната плюс будет балкон, кухня тоже с балконам. Сан узел около кухни и далее спальня со своей гардеробный 0 Share this post Link to post Share on other sites
Posted 05.11.2019 12:16 38 minutes ago, NeTrOn said: Какой не хороший человек вам это сказал? Там есть разные квадратуры до 260m2 Большая часть от 60 до100 м. 260 это исключение скорее. 1 minute ago, NeTrOn said: Изначально из за маленькой квадратуры хотел что то типа студийки, прихожка с гостиной теперь одна комната плюс будет балкон, кухня тоже с балконам. Сан узел около кухни и далее спальня со своей гардеробный Мне тоже кажется от застройщика план лучше. Но вам виднее конечно. 0 Share this post Link to post Share on other sites
Posted 05.11.2019 12:20 Just now, Anel said: Большая часть от 60 до100 м. 260 это исключение скорее. Ну здесь уже как и везде от кошелька зависит, когда я брал свои 92квадрата, без проблем было много 125-150квадратных и большие квадратуры из за дороговизны продаются как правило хуже... 1 Share this post Link to post Share on other sites
Posted 05.11.2019 12:23 Не стала ничего выше читать и вникать, помню Нетрон взял несколько квартир. Ну как, уже выгодно стало? Уже прибыль двойная? Ну если не секрет, просто поделитесь Я помню , что вам не для прибыли и все такое. Тем не менее 1 Share this post Link to post Share on other sites
Posted 05.11.2019 12:32 3 minutes ago, summer said: Не стала ничего выше читать и вникать, помню Нетрон взял несколько квартир. Ну как, уже выгодно стало? Уже прибыль двойная? Ну если не секрет, просто поделитесь Делюсь...пока только за последние два года четыре...По цене приобретения тогда и если бы эти же квартиры сейчас брал то разница мягко говоря приличная. Про прибыль двойная - это не мой случай, я не продавать брал. 1 Share this post Link to post Share on other sites
Posted 05.11.2019 13:02 28 минут назад, NeTrOn сказал: Делюсь...пока только за последние два года четыре...По цене приобретения тогда и если бы эти же квартиры сейчас брал то разница мягко говоря приличная. Про прибыль двойная - это не мой случай, я не продавать брал. Понятно. Спасибо. А что значит за последние два года четыре 0 Share this post Link to post Share on other sites
Posted 05.11.2019 13:14 10 minutes ago, summer said: Понятно. Спасибо. А что значит за последние два года четыре Квартиры. Паризен где то на 100 долларов дороже стал. Сити вроде больше просят, но от застройщика тут тоже цены писали. Но где то на 300-400 долл точно подросли. 2 Share this post Link to post Share on other sites
Posted 05.11.2019 13:36 1 hour ago, summer said: Уже прибыль двойная? Эх, если бы так - все уже давно всё скупили бы 3 Share this post Link to post Share on other sites
Posted 05.11.2019 14:00 20 minutes ago, DOS said: Эх, если бы так - все уже давно всё скупили бы Ну смотрите Нетрон паризен взял по 800. Сейчас у застройщика он 900 на его площадь 60 кв.м.+ 6000. Сити был 700. Потом заставили доплатить стал 1000, сейчас вроде 1200-1300. На его площадь 90 кв. 27 000. Неплохо.Но пока нет сделки прибыль не зафиксирована. А какая она бы была. Это только пытаться продать, но это не его вариант 0 Share this post Link to post Share on other sites
Posted 05.11.2019 15:01 41 minutes ago, Anel said: Ну смотрите Нетрон паризен взял по 800. Сейчас у застройщика он 900 на его площадь 60 кв.м.+ 6000. Сити был 700. Потом заставили доплатить стал 1000, сейчас вроде 1200-1300. На его площадь 90 кв. 27 000. Неплохо.Но пока нет сделки прибыль не зафиксирована. А какая она бы была. Это только пытаться продать, но это не его вариант Так как мой основной бизнес к у.е не какого отношения к моему сожалению не имеет и зарабатываю я исключительно как тогда так и сейчас только в местной валюте, ваш расчет не совсем в моем случаи верен. По курсовой разницы в случаи с Гарденс на сегодняшний день с каждого доллара разница 1000сум (785млн.сум я заплатил год назад и 1125млрд. сум я бы с учетам повышения квартиры заплатил бы сегодня) а в случае с парисиен курсовая разница 1200сум (436млн. я оплатил тогда и 575млн. я бы заплатил сегодня) ну как то в грубом расчете так 0 Share this post Link to post Share on other sites
Posted 05.11.2019 15:12 10 minutes ago, NeTrOn said: Так как мой основной бизнес к у.е не какого отношения к моему сожалению не имеет и зарабатываю я исключительно как тогда так и сейчас только в местной валюте, ваш расчет не совсем в моем случаи верен. По курсовой разницы в случаи с Гарденс на сегодняшний день с каждого доллара разница 1000сум (785млн.сум я заплатил год назад и 1125млрд. сум я бы с учетам повышения квартиры заплатил бы сегодня) а в случае с парисиен курсовая разница 1200сум (436млн. я оплатил тогда и 575млн. я бы заплатил сегодня) ну как то в грубом расчете так Да, но вы могли тогда купить баксы по 7600 на ваш сумовой доход. Которые сегодня бы продали по 9500 6 Share this post Link to post Share on other sites
Posted 05.11.2019 15:20 5 minutes ago, Anel said: Да, но вы могли тогда купить баксы по 7600 на ваш сумовой доход. Которые сегодня бы продали по 9500 Без вопросов...но суть здесь вдругом 0 Share this post Link to post Share on other sites
Posted 05.11.2019 15:31 8 минут назад, NeTrOn сказал: Без вопросов...но суть здесь вдругом Вы посмотрите зато какие расчёты ведутся за вас... просто браво Анель ( никакого стеба) и не лениво ведь вам нисколечко.. вы же в курсе нетрон что за это деньги люди оплачивают, бухгалтерам и пр маркетологам .. 2 Share this post Link to post Share on other sites
Posted 05.11.2019 15:41 10 minutes ago, summer said: Вы посмотрите зато какие расчёты ведутся за вас... просто браво Анель ( никакого стеба) и не лениво ведь вам нисколечко.. вы же в курсе нетрон что за это деньги люди оплачивают, бухгалтерам и пр маркетологам .. Меня хлебом не корми дай что нибудь прикинуть и посчитать)) 1 Share this post Link to post Share on other sites
Posted 05.11.2019 15:44 1 минуту назад, Anel сказал: Меня хлебом не корми дай что нибудь прикинуть и посчитать)) Вот блин... какой полезный контакт.. форум кладезь контактов) 0 Share this post Link to post Share on other sites
Posted 05.11.2019 18:05 4 часа назад, Anel сказал: Ну смотрите Нетрон паризен взял по 800. Сейчас у застройщика он 900 на его площадь 60 кв.м.+ 6000. Сити был 700. Потом заставили доплатить стал 1000, сейчас вроде 1200-1300. На его площадь 90 кв. 27 000. Неплохо.Но пока нет сделки прибыль не зафиксирована. А какая она бы была. Это только пытаться продать, но это не его вариант так цена в долларах не изменилась. А теперь пусть он попробует продать по 900 за квадрат. В Сити 1 квадрат отдают по 900-1000. -2 Share this post Link to post Share on other sites
Posted 05.11.2019 19:12 56 minutes ago, Raptor said: так цена в долларах не изменилась. А теперь пусть он попробует продать по 900 за квадрат. В Сити 1 квадрат отдают по 900-1000. Продам не продам тебе та какое дело, ты что жизнью обиженный? от того что ты под каждым моим постом минусы понаставил голова та у тебя варить все равно лучше не станет 3 Share this post Link to post Share on other sites
Posted 05.11.2019 19:13 6 часов назад, Немой сказал: Первый проект мне больше понравился. Только гардеробную в спальню добавил. В двух комнатной совмещённый санузел. Оригинально. В большом коридоре место для толчка не нашлось? 1 Share this post Link to post Share on other sites
Posted 06.11.2019 05:03 (edited) 9 hours ago, NeTrOn said: Продам не продам тебе та какое дело, ты что жизнью обиженный? Всякие космические водолазы от бессилия тут желчью плещут. Видать и Раптора заразили Не обращай внимания. Edited 06.11.2019 05:05 by DOS 2 Share this post Link to post Share on other sites
Posted 06.11.2019 05:56 10 часов назад, NeTrOn сказал: Продам не продам тебе та какое дело, ты что жизнью обиженный? от того что ты под каждым моим постом минусы понаставил голова та у тебя варить все равно лучше не станет Да всё правильно сделал. Не обращай внимания. Всяко лучше, чем деньги под матрасом хранить. 1 Share this post Link to post Share on other sites
Posted 06.11.2019 07:26 (edited) В 20.10.2019 в 21:50, arteto сказал: У достойных и достойный вид из окна?! Edited 06.11.2019 07:27 by Веселая Змейка 0 Share this post Link to post Share on other sites
Posted 06.11.2019 10:35 (edited) 5 hours ago, DOS said: Видать и Раптора заразили судя по постам Раптора Видать унего развета потологическая ненависть на генетическом уровне к многоквартирным домам и всему и всем что сними связано землю любит чувак чтобы бычков кур баранов можно было разводить Edited 06.11.2019 10:38 by Crown 2 Share this post Link to post Share on other sites