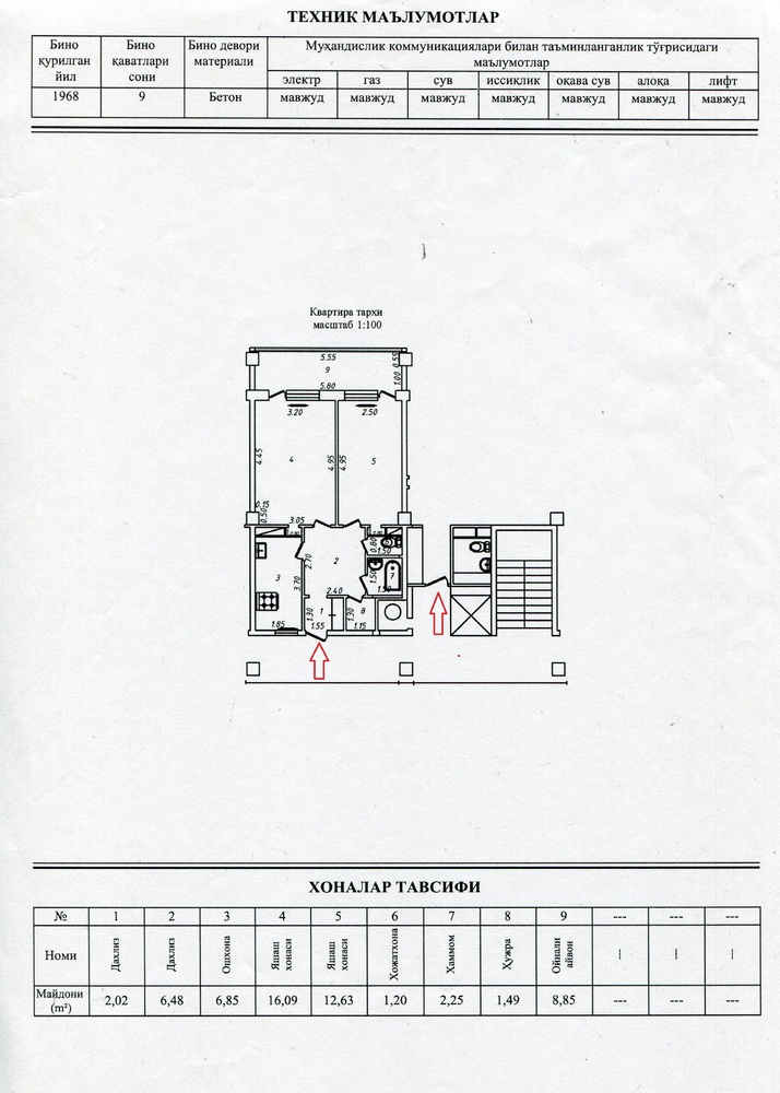
Posted 26.01.2022 05:51 38 minutes ago, freshman said: Что за унитаз за стеной квартиры? Общественный туалет за лифтом. Продвинутый дом, однако 2 Share this post Link to post Share on other sites
Posted 26.01.2022 06:31 на счет банеров, год назад продолжительное время и много было банеров в доме Артель на пожарке, последние 2 месяца проходя там удивлялся что всего 1 банер висит и тот напротив пожарки. 0 Share this post Link to post Share on other sites
Posted 26.01.2022 08:38 3 часа назад, freshman сказал: Что за унитаз за стеной квартиры? Зачем он в плане? Сверху надпись: "Для гостей", "Для князей", а на третьем - "Стул для царских кровей" (С) 1 Share this post Link to post Share on other sites
Posted 26.01.2022 08:40 2 минуты назад, nerokes сказал: Сверху надпись: "Для гостей", "Для князей", а на третьем - "Стул для царских кровей" (С) Дверь не видно на план схема. Замуровали гостей. 0 Share this post Link to post Share on other sites
Posted 26.01.2022 11:02 5 часов назад, freshman сказал: Что за унитаз за стеной квартиры? Зачем он в плане? Все вопросы к БТИ, они выдали план на квартиру с унитазом соседней квартиры Я просто не обратил внимание, мельком подумал, что помещение типа кладовки или шахты сзади лифта. 2 часа назад, Раш сказал: Дверь не видно на план схема. Входные двери в каждую квартиру есть на плане, см. красные стрелки второй унитаз на плане от соседней квартиры 0 Share this post Link to post Share on other sites
Posted 26.01.2022 14:18 10 часов назад, DOS сказал: От 70тыш и выше В каком доме? 73-й и 75-й дома, или 40 и 40-а? Они же - разные, хотя и те и другие - напротив Голубых куполов. 1 Share this post Link to post Share on other sites
Posted 26.01.2022 14:49 30 minutes ago, Khudo said: 73-й и 75-й дома, или 40 и 40-а? А хез. Под напротив лично я понимаю 73 и 75 дома, за книжными рядами. 40е дома это уже сзади куполов 1 Share this post Link to post Share on other sites
Posted 26.01.2022 14:57 5 минут назад, DOS сказал: А хез. Под напротив лично я понимаю 73 и 75 дома, за книжными рядами. 40е дома это уже сзади куполов Ну, это смотря как встать Для меня и те и другие - напротив. 1 Share this post Link to post Share on other sites
Posted 26.01.2022 15:00 (edited) Напротив голубых куполов стрёмная 7 этажка вроде или 12 хз. Хрущевка именуемая типа спец плана, сов мина, а на самом деле сассык вторичка хрущевка. Позади нее вообще аварийное жилье из сассык 4х этажек. Улица саморкандская или какая там. Короче там даже деревья стрёмные внутри, всё сносить и пилить надо Edited 26.01.2022 15:01 by arteto 0 Share this post Link to post Share on other sites
Posted 26.01.2022 15:10 8 minutes ago, arteto said: сассык вторичка хрущевка Пластинку смени. Уже и читать не хочецца Хрюшевкамуш. Там в каждой комнате по лоджии 11 Share this post Link to post Share on other sites
Posted 26.01.2022 15:17 7 минут назад, DOS сказал: Пластинку смени. Уже и читать не хочецца Хрюшевкамуш. Там в каждой комнате по лоджии А уродливых регилей? А не нужной квадратуры? Которая не жилая и нафиг не упёрлась? А потолки вообще как в концлагере 0 Share this post Link to post Share on other sites
Posted 26.01.2022 15:22 (edited) Этот дом надо снести, выравнить дорогу в уровень с первый этажем новой новостройки которую возвести надо, чтобы под бизнес было удобно использовать коммерческие помещения. А в этом доме что? Непутёвые первые этажи, к которым фиг подъедешь или подниматься надо неудобно. В этом доме больше минусов, чем плюсов. Вид с окон во двор, как будто после бомбежки Берлина, такое унылое гапно из окна на старые дома которые уже сыпятся. Ой ужас, аж плохо стало мне ((((((( Edited 26.01.2022 15:23 by arteto 0 Share this post Link to post Share on other sites
Posted 26.01.2022 15:51 28 minutes ago, arteto said: Этот дом надо снести Не снесут. Там в их дворе 2х этажки-развалюхи не могут снести, а ты про этот дом пишешь. 1 Share this post Link to post Share on other sites
Posted 26.01.2022 16:07 В 1/25/2022 в 19:58, MAKLER сказал: 2/8/9 Ц-5, галерейка, всё советское, стеклопакеты, ~ 58 кв.м., старт 35 000, на продаже 3 дня, сегодня оформил за 34 000. Для покупателя по моему неплохая цена, штук 4 на ремонт-мебель и сдавать за 350 0 Share this post Link to post Share on other sites
Posted 26.01.2022 17:03 1-комнатная квартира в деревянном доме в Сергилях за $16000 - это как по нынешним ценам? Нормально или дорого? 0 Share this post Link to post Share on other sites
Posted 26.01.2022 17:22 1 hour ago, err said: ремонт-мебель и сдавать за 350 Ремонт и мебель? 400, минимум 17 minutes ago, Khudo said: Нормально или дорого? Продать номанно, а купить дорого 3 Share this post Link to post Share on other sites
Posted 26.01.2022 17:25 20 минут назад, Khudo сказал: 1-комнатная квартира в деревянном доме в Сергилях за $16000 - это как по нынешним ценам? Нормально или дорого? Маргинальные дома. Там основной контингент из бывших зэков. И их потомства. 2 Share this post Link to post Share on other sites
Posted 26.01.2022 18:45 (edited) вот хорошо все объясняющая статья. спрос в области возрос . https://uz.sputniknews.ru/20220126/pochemu-v-uzbekistane-stali-chasche-pokupat-i-prodavat-jile--obzor-tsb-22393756.html Edited 26.01.2022 18:48 by aleksey yurevich 0 Share this post Link to post Share on other sites
Posted 26.01.2022 18:57 4 hours ago, Khudo said: В каком доме? 73-й и 75-й дома, или 40 и 40-а? Они же - разные, хотя и те и другие - напротив Голубых куполов. Точно. Не подумал. 40е дома. Те которые сейчас через дорогу, 7 этажа вроде. 73/75 - 9ти этажки да вроде. так вот стоит ли за 80 взять. Я так понимаю убитая. То есть ещё 20ку наверное нужно будет вложить 0 Share this post Link to post Share on other sites
Posted 26.01.2022 19:33 2 часа назад, Khudo сказал: 1-комнатная квартира в деревянном доме в Сергилях за $16000 - это как по нынешним ценам? Нормально или дорого? Учитывая то, что прям во двор подвели метро, и могут сломать с обменом на нормальную хату - думаю, нормально 2 Share this post Link to post Share on other sites
Posted 27.01.2022 04:40 (edited) 9 hours ago, Friday said: стоит ли за 80 взять. Если не последнее бабло, то стоит. Хороший дом, какчественный, если конечно ригеля тебя не беспокоят. За 80тыш очер 100кв новострой в самом центре Ташкента один фиг не взять. Такшта, это хороший вариант. Тем более, по качеству и сейсмостойкости башка не будет болеть Edited 27.01.2022 04:44 by DOS 4 Share this post Link to post Share on other sites
Posted 27.01.2022 07:23 а что можете сказать по московским высоткам на Х.Олимжана? уж больно цена интересная 105 или 120м2 за 75т. 0 Share this post Link to post Share on other sites
Posted 27.01.2022 07:42 18 минут назад, maverick144 сказал: а что можете сказать по московским высоткам на Х.Олимжана? уж больно цена интересная 105 или 120м2 за 75т. Этаж? 0 Share this post Link to post Share on other sites
Posted 27.01.2022 08:30 1 час назад, maverick144 сказал: а что можете сказать по московским высоткам на Х.Олимжана? уж больно цена интересная 105 или 120м2 за 75т. Беспонтово. Уже не ликвидно 0 Share this post Link to post Share on other sites
Posted 27.01.2022 08:39 1 час назад, maverick144 сказал: а что можете сказать по московским высоткам на Х.Олимжана? уж больно цена интересная 105 или 120м2 за 75т. проблема на проблеме, как на всех высотках в Ташкенте. Срок эксплуатации не маленький, но кап ремонт жильцы не тянут. + а точнее - низкие потолки и подъезды как лабиринты. 2 Share this post Link to post Share on other sites