Posted 11.04.2021 11:07 47 минут назад, maxxxi сказал: не ставят но стоял. В 3х квартирах, пока я не отказался от газовых счетчиков и не демонтировал их к такой то матери. 0 Share this post Link to post Share on other sites
Posted 11.04.2021 12:40 1 час назад, D.L. сказал: но стоял. В 3х квартирах, пока я не отказался от газовых счетчиков и не демонтировал их к такой то матери. А сейчас от этих не откажешься, сам Президент подписал. 2 часа назад, maxxxi сказал: В шахте не ставят газовый счетчик. Почему ? 0 Share this post Link to post Share on other sites
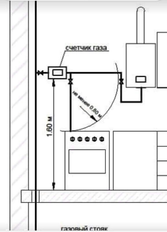
Posted 11.04.2021 15:07 2 часа назад, MAKLER сказал: Почему ? по той же причине почему трубы проводят открытым способом. 4 часа назад, D.L. сказал: но стоял. у нас и не такое бывает 0 Share this post Link to post Share on other sites
Posted 11.04.2021 17:26 2 часа назад, maxxxi сказал: по той же причине почему трубы проводят открытым способом. у нас и не такое бывает Так газ же с шахты на кухню у нас заходит, так как в шахте газовый стояк проходит. Тоже удивляюсь, почему нельзя в шахте ставить. Значит рядом с плиткой можно, а в шахте нельзя. Если бы у нас в шахте ставили, то было бы замечательно 0 Share this post Link to post Share on other sites
Posted 11.04.2021 17:44 16 минут назад, damochka сказал: Так газ же с шахты на кухню у нас заходит у нас с Вами неправильный дом с неправильной шахтой, в которой есть неправильная труба с неправильным газом. Еще и стояк при этом! 1 Share this post Link to post Share on other sites
Posted 11.04.2021 17:54 7 минут назад, D.L. сказал: у нас с Вами неправильный дом с неправильной шахтой, в которой есть неправильная труба с неправильным газом. Еще и стояк при этом! Да еще и кухня всего, примерно, раза в 4 больше самой шахты. 1 Share this post Link to post Share on other sites
Posted 11.04.2021 17:56 (edited) 2 минуты назад, damochka сказал: Да еще и кухня всего, примерно, раза в 4 больше самой шахты. а теперь представьте на ней этот газовый скворешник Хотя при должной стилизации на него можно советскую хлебницу поставить Edited 11.04.2021 17:57 by D.L. 0 Share this post Link to post Share on other sites
Posted 12.04.2021 02:34 8 часов назад, D.L. сказал: а теперь представьте на ней этот газовый скворешник Хотя при должной стилизации на него можно советскую хлебницу поставить Даже представлять не хочу. Одно время, вроде, разрешили покупать самим подходящие счетчики, но потом, вроде ,запретили 0 Share this post Link to post Share on other sites
Posted 12.04.2021 04:33 1 час назад, damochka сказал: Даже представлять не хочу. Одно время, вроде, разрешили покупать самим подходящие счетчики, но потом, вроде ,запретили Подозреваю что скоро с ностальгией будем вспоминать , как в недалёком прошлом и бытовую технику и телефоны разрешали выбирать самим 0 Share this post Link to post Share on other sites
Posted 12.04.2021 06:41 15 часов назад, maxxxi сказал: по той же причине почему трубы проводят открытым способом. Во многих домах ещё советской постройки газовая труба проходит по шахте, там сквозняка в разы больше, чем бы утечка газа была на самой кухне, особенно в зимний период. Ну ты понимаешь !? 1 Share this post Link to post Share on other sites
Posted 12.04.2021 08:59 4 часа назад, rintik сказал: Подозреваю что скоро с ностальгией будем вспоминать , как в недалёком прошлом и бытовую технику и телефоны разрешали выбирать самим Ха, я помню время, когда высоту носков самому выбирать можно было. 3 Share this post Link to post Share on other sites
Posted 12.04.2021 13:09 https://www.facebook.com/groups/TChSJ.Uz/permalink/3623899194386173/ АО "HUDUDGAZTA'MINOT" ЗАПУСТИЛ TELEGRAM БОТ ДЛЯ УДОБСТВА ПОТРЕБИТЕЛЕЙ Telegram бот разработан для передачи показаний с ранее установленных у потребителей приборов учета газа, не поддерживающих систему АСКУГ. . Ну хоть какой-то шаг навстречу населению, при условии правильной и бесперебойной работы сего чуда. 0 Share this post Link to post Share on other sites
Posted 12.04.2021 13:41 27 минут назад, Dimon55555510 сказал: https://www.facebook.com/groups/TChSJ.Uz/permalink/3623899194386173/ АО "HUDUDGAZTA'MINOT" ЗАПУСТИЛ TELEGRAM БОТ ДЛЯ УДОБСТВА ПОТРЕБИТЕЛЕЙ Telegram бот разработан для передачи показаний с ранее установленных у потребителей приборов учета газа, не поддерживающих систему АСКУГ. . Ну хоть какой-то шаг навстречу населению, при условии правильной и бесперебойной работы сего чуда. Попробовал сейчас этот бот. Ну нашел он меня по лицевому счету. Показывает, что дом могу прикрепить. Ну а дальше что? Ничего! Не доделан еще этот бот. 0 Share this post Link to post Share on other sites
Posted 12.04.2021 14:01 16 минут назад, voice сказал: Попробовал сейчас этот бот. Ну нашел он меня по лицевому счету. Показывает, что дом могу прикрепить. Ну а дальше что? Ничего! Не доделан еще этот бот. Да, действительно, хрень очередная пока. Тоже нашёл себя по лицевому счёты, так там в данных номер домашнего телефона указан, а бот на него код подтверждения отправляет. Почему нельзя отправлять этот код на номер, с которого абонент входит в Телеграм-бот. Не получается цензурными словами выразиться... 0 Share this post Link to post Share on other sites
Posted 12.04.2021 14:05 Вот максимум этого бота, а так же, что он умеет делать 1 Share this post Link to post Share on other sites
Posted 12.04.2021 14:08 У МИБовцев, по крайней мере, работал бот по отправке фото с показаниями счётчиков, корявенько, но хоть что-то было. Чтож, будем подождать, может всё-таки, допилят. 0 Share this post Link to post Share on other sites
Posted 22.04.2021 03:19 (edited) Господа, посоветуйте пожалуйста. В квартире никто не прописан. Хозяин - отец. Жить будет 1 человек. Нужно ли ставить газовый счетчик (новый электронный) или платить каждый месяц за 1 человека (7260 сум) и не париться. Почему сомневаюсь ставить счетчик - газовая плита стоит на балконе (как и у всех). А туда типо ставить нельзя. И если в 2 года раз, проверка счетчика то будут докапываться до газ плиты А без счетчика - заплатил сразу за год 7260×12=87.000 и живи спокойно Edited 22.04.2021 03:21 by Faralive 0 Share this post Link to post Share on other sites
Posted 22.04.2021 03:21 1 минуту назад, Faralive сказал: Господа, посоветуйте пожалуйста. В квартире никто не прописан. Хозяин - отец. Жить будет 1 человек. Нужно ли ставить газовый счетчик (новый электронный) или платить каждый месяц за 1 человека (7260 сум) и не париться. Почему сомневаюсь ставить счетчик - газовая плита стоит на балконе (как и у всех). А туда типо ставить нельзя. И если в 2 года раз, проверка счетчика то будут докапываться до газ плиты Я перенёс плиту с балкона назад и плачу по числу прописанных. 1 Share this post Link to post Share on other sites
Posted 22.04.2021 03:23 (edited) 2 минуты назад, Немой сказал: Я перенёс плиту с балкона назад и плачу по числу прописанных. Без счетчика у тебя? У меня почти ремонт готов и неохота долбить с кухни дыру для вытяжки Или счетчики ставить - это обязательно по закону (какому нибудь)?)) Edited 22.04.2021 03:24 by Faralive 0 Share this post Link to post Share on other sites
Posted 22.04.2021 03:25 1 минуту назад, Faralive сказал: Без счетчика у тебя? Да 1 минуту назад, Faralive сказал: У меня почти ремонт готов и неохота долбить с кухни дыру для вытяжки Там же вроде должна быть вытяжка по проекту? 2 минуты назад, Faralive сказал: Или счетчики ставить - это обязательно по закону (какому нибудь)?)) Нет Но, рано или поздно, установят. 0 Share this post Link to post Share on other sites
Posted 22.04.2021 03:26 Только что, Немой сказал: Там же вроде должна быть вытяжка по проекту? В 9 этажке вроде должна быть вытяжка на кухня. Но ее нет. Видимо предыдущие владельцы замазали, т.к. плита на балкон вынесена была Так что, лучше за 1 человека платить или заставят все равно в будущем счетчик ставить? 0 Share this post Link to post Share on other sites
Posted 22.04.2021 03:27 Только что, Faralive сказал: Так что, лучше за 1 человека платить или заставят все равно в будущем счетчик ставить? Сами установят. Сейчас всем ставят. А вытяжку лучше найти. 0 Share this post Link to post Share on other sites
Posted 22.04.2021 03:28 (edited) 2 минуты назад, Немой сказал: Сами установят. А если я не захочу? Я их звал месяц назад. Пока ремонт в процессе был. Они не пришли. Кухня уже готова. Будут щас мне ремонт засирать Просто мне не нравится когда в 2 года раз на проверку счетчика приходить будут, докапывания их насчет газ плиты Все равно 1 человек живет. За него бы и платил без счетчика Edited 22.04.2021 03:30 by Faralive 0 Share this post Link to post Share on other sites
Posted 22.04.2021 03:30 1 минуту назад, Faralive сказал: А если я не захочу? Я их звал месяц назад. Пока ремонт в процессе был. Они не пришли. Кухня уже готова. Будут щас мне ремонт засирать Они сейчас всем ставят и меняют. Тупо ресурсов нет по вызовам ходить. И до вас очередь дойдёт. 1 минуту назад, Faralive сказал: Просто мне не нравится когда в 2 года раз на проверку счетчика приходить будут, докапывания их насчет газ плиты Потому и перенесите на кухню. 0 Share this post Link to post Share on other sites
Posted 22.04.2021 03:31 Только что, Немой сказал: Они сейчас всем ставят и меняют. Тупо ресурсов нет по вызовам ходить. И до вас очередь дойдёт. Значит принудительно что ли? 0 Share this post Link to post Share on other sites