Deja_VU

Перепланировка квартиры

577 posts in this topic

2 минуты назад, arteto сказал:

По 30-40 см оставляют. Ничего страшного. Главное арка стойки есть. Там только аппендиксы сносят же. 

Какие аппендиксы сносят??? Вот так разае правильно с несущей стеной поступать???

200109500439_271409.jpg.7fbfaac1576f832c508fc75bcd3d92c3.jpg

0

Share this post


Link to post
Share on other sites
Только что, ЕленаСергеевна сказал:

Какие аппендиксы сносят??? Вот так разае правильно с несущей стеной поступать???

200109500439_271409.jpg.7fbfaac1576f832c508fc75bcd3d92c3.jpg

Там окна были на аппендиксах :lol: у вас ещё стены длинные оставили... Я по 40 см оставил с двух сторон

0

Share this post


Link to post
Share on other sites

Лучше бы они эту арку не делали... зал и так юольшой.. а сейчас холодрыга из за этого аппендикса...

Edited by ЕленаСергеевна
0

Share this post


Link to post
Share on other sites
3 минуты назад, ЕленаСергеевна сказал:

Какие аппендиксы сносят??? Вот так разае правильно с несущей стеной поступать???

200109500439_271409.jpg.7fbfaac1576f832c508fc75bcd3d92c3.jpg

Сейчас замерил. По 60 см оказывается стойки у меня.

На кухне 42 см. 

Только что, ЕленаСергеевна сказал:

Лучше бы они эту арку не делали... зал и так юольшой.. а сейчас холодрыга из за этого аппендикса...

Там многие купе акфа двери ставят. Красиво смотрится. Но дорого :D лучше арка. И рам лишних нет и уродства. 

0

Share this post


Link to post
Share on other sites
5 минут назад, ЕленаСергеевна сказал:

Лучше бы они эту арку не делали... зал и так юольшой.. а сейчас холодрыга из за этого аппендикса...

Мне тоже с Жека сказали не убирай, холодно будет. Я там все кирпичом заложил, после пенопласт и стеновой гипсокартон по периметру. Всё равно холодно :D рамы тоже хорошие. Всё равно холодно. Надо было отопление туда тоже провести под окном по длине 

Edited by arteto
0

Share this post


Link to post
Share on other sites
6 минут назад, arteto сказал:

Мне тоже с Жека сказали не убирай, холодно будет. Я там все кирпичом заложил, после пенопласт и стеновой гипсокартон по периметру. Всё равно холодно :D рамы тоже хорошие. Всё равно холодно. Надо было отопление туда тоже провести под окном по длине 

У меня вдоль стены батарея 14 секций... все равно холодно (и плесень:D )...

0

Share this post


Link to post
Share on other sites
1 минуту назад, ЕленаСергеевна сказал:

У меня вдоль стены батарея 14 секций... все равно холодно (и плесень:D )...

А у меня там кирпичом утеплено, после пенопласт и гипсуха. Но не так холодно 

:D

0

Share this post


Link to post
Share on other sites
4 минуты назад, ЕленаСергеевна сказал:

У меня вдоль стены батарея 14 секций... все равно холодно (и плесень:D )...

В бетоне сейчас всем холодно :D

0

Share this post


Link to post
Share on other sites
39 минут назад, ЕленаСергеевна сказал:

Блин.. а как же зал с балконом аркой объединяют... нарушают несущую конструкцию получается???

У родителей все окна снесли, но оставили с двух сторон эти бетонные перегородки, сверху положив мрамор, получилось идеальное место для цветов...

А вот на кухне снесли полностью.. получилось одно целое с кухней..:rolleyes:

0

Share this post


Link to post
Share on other sites
38 минут назад, ЕленаСергеевна сказал:

Какие аппендиксы сносят??? Вот так разае правильно с несущей стеной поступать???

200109500439_271409.jpg.7fbfaac1576f832c508fc75bcd3d92c3.jpg

Если это арка на балкон, то у нас не такой проем, у нас он больше.. стен по краям в 2 раза меньше..:rolleyes:

А вот такая арка, у нас вход в зал, с коридора, с середины, поймут те, кто в 4-х комнатных бывал..

1

Share this post


Link to post
Share on other sites
46 минут назад, spy_cam сказал:

А вот на кухне снесли полностью.. получилось одно целое с кухней..:rolleyes:

У меня тоже снесли полностью.. и получилось целое с кухней.. стену не утеплили и положили плитку... тоже колотун от этой стены...

0

Share this post


Link to post
Share on other sites
10 минут назад, ЕленаСергеевна сказал:

У меня тоже снесли полностью.. и получилось целое с кухней.. стену не утеплили и положили плитку... тоже колотун от этой стены...

Я про зал, там в отличии от кухни 2 аппендекса..:rolleyes:

0

Share this post


Link to post
Share on other sites
1 час назад, ЕленаСергеевна сказал:

У меня вдоль стены батарея 14 секций... все равно холодно (и плесень:D )...

Реально плесень на стенах??? Я бы с этим не шутил!!!

Это ощутимый урон здоровью проживающих!!!

0

Share this post


Link to post
Share on other sites
9 минут назад, eugeen13 сказал:

Реально плесень на стенах??? Я бы с этим не шутил!!!

Это ощутимый урон здоровью проживающих!!!

Аха... но куда мне сейчас деваться???

я по совету однофорумчанина брызгаю между секциями перекисью - она реально посветлела и уменьшилась.. а там где нет батареи - я побрызгала каким то российско-израильским средством.. там хлор есть.. жидкость с пеной.. тоже на глазах светлеет и уходит... но это все временно до весны... потом буду там все снимать.. счищать.. купоросом травить.. потом утеплять стену и закрывать...

Edited by ЕленаСергеевна
1

Share this post


Link to post
Share on other sites
2 часа назад, ЕленаСергеевна сказал:

Вот так разае правильно с несущей стеной поступать???

Там не было несущих рам и дверей. там только несущая балка, и она на месте....;)

В основном все убирают окна с дверью и сносят кусок стены которая под окном..(он ни чего не несёт кроме рамы и подоконника..)

23 минуты назад, ЕленаСергеевна сказал:

я по совету однофорумчанина брызгаю между секциями перекисью - она реально посветлела и уменьшилась..

Обесцвечивается!:D

Кстати, плесень сырая или сухая как пудра?

1

Share this post


Link to post
Share on other sites
22 минуты назад, ШивОлег сказал:

Обесцвечивается!:D

Кстати, плесень сырая или сухая как пудра?

Я боюсь ее пальцами трогать.. не знаю))

0

Share this post


Link to post
Share on other sites
5 часов назад, spy_cam сказал:

В этих домах, 9-этажках франция, несущие стены вот эти..

98e817c9e160.jpg

Да там и по швам на потолке, и по толщине стен хозяин сам поймет..:rolleyes:

Попробуйте собрать 9-ти этажный дом из игральных карт только с отмеченными вами стенами.

0

Share this post


Link to post
Share on other sites
16 минут назад, jenyok сказал:

Попробуйте собрать 9-ти этажный дом из игральных карт только с отмеченными вами стенами.

Я эти дома по детству, считай со строителями сам строил, с десяток штук.. они днем, мы ночью, или на выхи..:D

Каждую щель знаю..:rolleyes:

1

Share this post


Link to post
Share on other sites

От балкона стоят длинные плиты, от спален короткие, примерно так..

1670ad236587.jpg

1

Share this post


Link to post
Share on other sites
6 часов назад, spy_cam сказал:

От балкона стоят длинные плиты, от спален короткие, примерно так..

1670ad236587.jpg

Получается в зале на арочную балку опираются 2 плиты, не уменьшит ли надежность конструкции вариант предложеный arteto?
Я бы не прочь подгрызсть аппендиксы оставив по 60 сантимов (сейчас они не симметричные...
А дальше теплоизоляция и теплый пол на балкон для сохранения тепла

0

Share this post


Link to post
Share on other sites

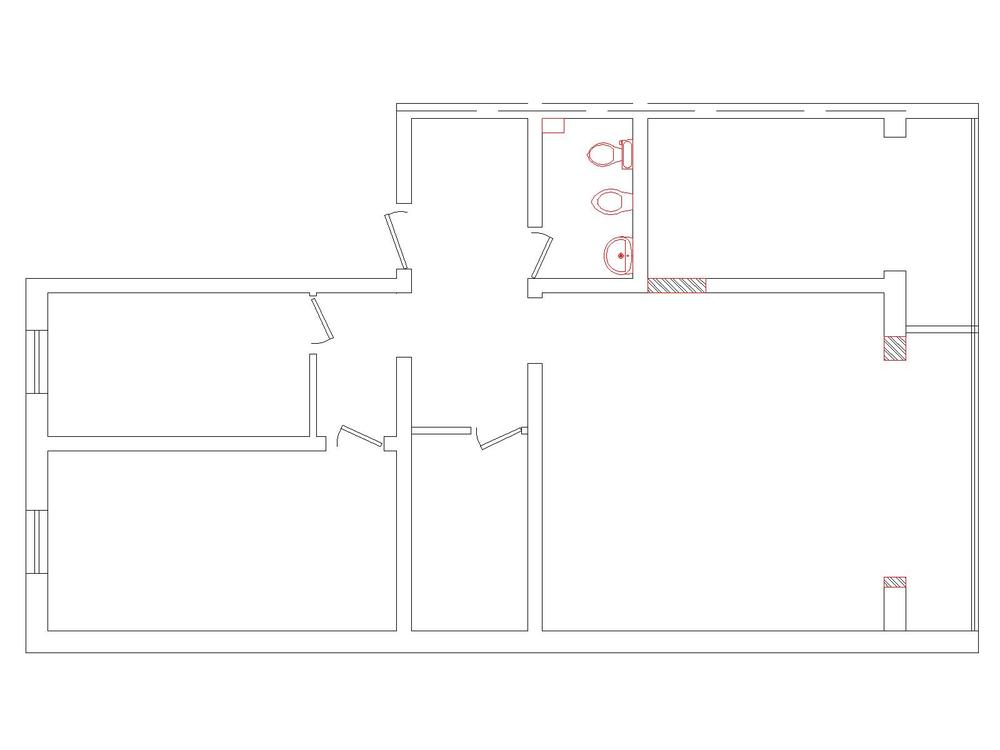
Уважаемые знатоки, кто-нибудь пробовал вот так сделать туалет? удобно ли будет через зал ходить?

И сразу же указал где хочу подрезать колоны (жутко портящие симметрию и настроение) в зале, и проход на кухню выбить

Помогите советами, уже на финишной прямой :facepalme:
 

Модель.jpg

Edited by tpy6o4uct
0

Share this post


Link to post
Share on other sites
1 час назад, tpy6o4uct сказал:

Уважаемые знатоки, кто-нибудь пробовал вот так сделать туалет? удобно ли будет через зал ходить?

И сразу же указал где хочу подрезать колоны (жутко портящие симметрию и настроение) в зале, и проход на кухню выбить

Помогите советами, уже на финишной прямой :facepalme:
 

Модель.jpg

С 2мя унитазами?

0

Share this post


Link to post
Share on other sites
1 час назад, err сказал:

С 2мя унитазами?

нееет ) это биде! 
это ж каким надо быть заср@нцем что бы в одном помещении 2 унитаза лепить :D

Edited by tpy6o4uct
0

Share this post


Link to post
Share on other sites
19 минут назад, tpy6o4uct сказал:

нееет ) это биде! 
это ж каким надо быть запрелестнцем что бы в одном помещении 2 унитаза лепить :D

Хрошо еще про писуар не спросил, который первый, в углу..:crazy:

0

Share this post


Link to post
Share on other sites
8 минут назад, spy_cam сказал:

Хрошо еще про писуар не спросил, который первый, в углу..:crazy:

маленький квадратный

 :rofl:

Edited by tpy6o4uct
0

Share this post


Link to post
Share on other sites

  • Recently Browsing   0 members

    No registered users viewing this page.