Posted 03.11.2017 09:29 (edited) В самом углу - если так то там стыки. Всё верно. из стен торчит арматура. их сваривают с соседними стенами. Закладывают утеплитель, если помните, такие белые были трубки, затем заделывают цементом. Вот поэтому углы и кривые. Я думаю это гораздо проще и легче, чем долбить саму бетонную стену. Edited 03.11.2017 09:32 by Рассел Вещий 0 Share this post Link to post Share on other sites
Posted 03.11.2017 10:11 Вот тут делали отверстие. И в этом месте внутри была пустота. Сама панель двойная, потому как долбили изнутри перфоратором - и там был бетон, а не цемент, а после выковыривали утеплитель и долбили уже наружную стенку. 0 Share this post Link to post Share on other sites
Posted 03.11.2017 10:22 10 минут назад, Messir сказал: самая ужасная планировка квартиры ИМХО 1 Share this post Link to post Share on other sites
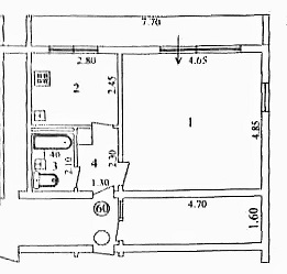
Posted 03.11.2017 11:06 2 hours ago, Рассел Вещий said: Отметил на плане - красные - несущие, зеленые - перегородки, оранжевые - самонесущие. Перегородки можете трогать. Вы уверены? Это 9 этажка улучшенка. А почему они в плане тогда тонкие такие? И в реале тоже. Те что по периметру около 40 см толщиной. А все что внутри около 20 см наверное. 0 Share this post Link to post Share on other sites
Posted 03.11.2017 11:06 2 часа назад, Рассел Вещий сказал: Там стена межу залом и кухней самонесущая, но все равно ломать не стоит её, так как могут треснуть перекрытия, тем более если вы живете не на последнем этаже. Там перегородка из гипсолита. От её сноса ничего не треснет 0 Share this post Link to post Share on other sites
Posted 03.11.2017 11:17 Кроче, ничего не надо трогать. Чревато. 1 Share this post Link to post Share on other sites
Posted 03.11.2017 15:22 Нельзя её убирать. Может возрости нагрузка на перекрытие. Тем более там стык между плитами. 0 Share this post Link to post Share on other sites
Posted 03.11.2017 15:25 Это просто план начерченный кривой рукой. реальное положение может дать только техническо-строительная документация. ИМХО 4 часа назад, Anel сказал: Вы уверены? Это 9 этажка улучшенка. А почему они в плане тогда тонкие такие? И в реале тоже. Те что по периметру около 40 см толщиной. А все что внутри около 20 см наверное. Единственное что можно сделать - это вырубить проём на высоту двери, но отступить от угла на 40 см. 0 Share this post Link to post Share on other sites
Posted 03.11.2017 16:29 5 часов назад, Anel сказал: Вы уверены? Это 9 этажка улучшенка. А почему они в плане тогда тонкие такие? И в реале тоже. Те что по периметру около 40 см толщиной. А все что внутри около 20 см наверное. Наружные стены панельного дома Эти стены самые толстые и бывают двух видов: однослойные наружные стены, состоящие из легких бетонов многослойные стены, состоящие из железобетона и, как правило, пенополистирольных Многослойные панели Чаще всего такие панели состоят из двух слоев железобетона (наружный и внутренний) и пенополистирольных (пенопластовых) плит между ними. Стандартная толщина такой стены – 380мм. Внутренний железобетонный слой – 80-100 мм (ранее слой был тоньше). Наружный железобетонный слой – не менее 60 мм.плит Как отличить несущую стену панельного дома от перегородки При перепланировки квартиры необходимо точно знать, где расположены несущие стены, которые нельзя трогать, а где просто внутренние перегородки, которые можно снести, перенести и т.д. Самый простой способ, без чертежей и проектов определить где несущая стена, а где нет – померить толщину стены рулеткой или линейкой. Я уже говорил о толщине несущих стен, она начинается от 120мм. Поэтому берем линейку и меряем стену, если больше или равна 120мм, то эта стена несущая, если меньше, то перегородка. Источник http://postroj-sam.ru/panelnye-doma/tolshchina-sten-panelnogo-doma.html 1 Share this post Link to post Share on other sites
Posted 03.11.2017 16:39 8 минут назад, RAA68 сказал: многослойные стены, состоящие из железобетона и, как правило, пенополистирольных какой пенополистерол? стекловата там мятыми рулонами..... Я их ломал десятками... 0 Share this post Link to post Share on other sites
Posted 03.11.2017 20:01 в хрущевках действительно стекловата, а вот в 9 этажках я видел сам лично пенопласт внутри но вот не знаю во всех ли так. а прикол в том что стекловата со временем съеживается и оседает на дно, и остается плита практически без утеплителя. это я про хрущевки. 0 Share this post Link to post Share on other sites
Posted 04.11.2017 07:31 11 часов назад, aleksey yurevich сказал: в хрущевках действительно стекловата, а вот в 9 этажках я видел сам лично пенопласт внутри но вот не знаю во всех ли так. а прикол в том что стекловата со временем съеживается и оседает на дно, и остается плита практически без утеплителя. это я про хрущевки. Никуда она не съеживается Проверено долбежкой не одной стены, вообще стоит как новая что в панельках кто в кирпичных советских, почему запомнил и помню, меня удивляло это всегда, когда видел 0 Share this post Link to post Share on other sites
Posted 13.02.2018 12:51 (edited) У знакомых имеется однушка французской планировки в конце общего коридора и есть планы по захвату части этого коридора, которая продолжается от входной двери вдоль квартиры в виде тупика. Размер дополнительной площади 1,6 на 4,7 метра (можно сделать рабочий кабинет, тренажерный зал, кладовку и т.п) При этом уменьшается длинный общий коридор, мрачная темная катакомба, в конце которой скапливается разный хлам. Слыхал, что многие захватывают эту площадь и оплачивают за нее ТСЖ. Нужно сделать проход в эту "тещину комнату" из гостиной через НЕСУЩУЮ стену (или не несущая? толщина 25см) Нарыли в интернетах информацию, что у нас это запрещено, но в России, например, иногда официально разрешают и при этом требуют, чтобы: - на других этажах у соседей не должно быть подобных проемов или они должны располагаться строго друг под другом, а не в шахматном порядке - этаж должен быть как можно ближе к последнему (там седьмой, нагрузка сверху 2 этажа без чердака) - вырезать проем необходимо алмазными резаками, без перфоратора и кувалды - проем и стена вокруг укрепляется металлическим каркасом - от себя можно добавить вблизи проема поддерживающие стены - и возможность быстрого безболезненнгого восстановления прежнего вида в случае судебного приказа Прожу ув. формумчан поделиться опытом и советами бывалых, какие еще есть нюансы и какие еще есть идеи по перепланировке этой квартиры. Например перенос кухни в гостиную.. Edited 13.02.2018 12:59 by airbusnik 0 Share this post Link to post Share on other sites
Posted 13.02.2018 12:59 5 минут назад, airbusnik сказал: У знакомых имеется однушка французской планировки... ....(у меня седьмой, нагрузка сверху 2 этажа) Никогда еще Штирлиц не был так близок к провалу) 1 Share this post Link to post Share on other sites
Posted 13.02.2018 14:06 1 hour ago, airbusnik said: да уж:) Надо проектировщиков вызывать. Помоему там все стены несущие. Ничего трогать нельзя. 0 Share this post Link to post Share on other sites
Posted 13.02.2018 14:11 4 минуты назад, Anel сказал: Надо проектировщиков вызывать. Помоему там все стены несущие. Ничего трогать нельзя. она еще торцевая (сама квартира) хотя там нужно узнать направление потолочных плит 0 Share this post Link to post Share on other sites
Posted 13.02.2018 18:55 На самом деле квартира не торцевая. Это похожая схема с этого форума. Просто знаю, что в таких квартирах часто делают проемы в стенах.. Еще делают проход через стену из кухни в гостиную, чтобы увеличить прихожую и ванную. Поэтому и спрашиваю, может быть кто-то встречался с подобной перепланировкой, хотелось бы знать подробности А еще может быть кто-нибудь действительно знает раскладку перекрытий, очень полезная инфа 0 Share this post Link to post Share on other sites
Posted 13.02.2018 20:19 Во франции продольные стены и поперечные стены несущие. Плиты перекрытий как и в улучшенках и панельных хрущовках - размером на перекрываемую ими комнату. Если вы имели ввиду малосемейную модификацию франции, то замурованная комната на самом деле шахта, проходящая по высоте всей секции. Однако для чего она, сам хотел бы знать. 0 Share this post Link to post Share on other sites
Posted 14.02.2018 04:06 9 часов назад, airbusnik сказал: На самом деле квартира не торцевая. Это похожая схема с этого форума. ясно просто окно на схеме 0 Share this post Link to post Share on other sites
Posted 14.02.2018 12:10 интересно чем думают проектировщики? 1 Share this post Link to post Share on other sites
Posted 14.02.2018 18:52 36 минут назад, aziz7777 сказал: думаю в проекте двери должны были открываться внутр По требованиям Международных строительных норм (International Building Code) необходимо устанавливать входные двери так, чтобы их можно было (в случае необходимости) быстро выбить изнутри помещения. Исключение - гостиницы. Там двери должны открываться во внутрь (чтобы при открывании не ударить людей в коридоре). Вообще, в СССР ставили входные двери, открывающиеся во внутрь. Традиция. Берет начало с возведения изб: при снегопаде дверь, открывающуюся наружу, открыть было невозможно. 12 Share this post Link to post Share on other sites
Posted 15.02.2018 07:40 Дополню: ШНК 2.08.01-05 «Жилые здания» Таблица 7 Примечания: 1.Ширину марша следует определять расстоянием между ограждениями или между стеной и ограждением. 2. Внутриквартирные лестницы допускается устраивать деревянными. Лестницы могут быть винтовые или с забежными ступенями шириной проступи в середине не менее 18 см. 3. Ширина лестничных площадок должна быть не менее ширины марша. 4. Промежуточные площадки в прямом марше лестницы должны иметь ширину не менее 1 м. 5. ДВЕРИ, ВЫХОДЯЩИЕ НА ЛЕСТНИЧНУЮ КЛЕТКУ, В ОТКРЫТОМ ПОЛОЖЕНИИ НЕ ДОЛЖНЫ УМЕНЬШАТЬ РАСЧЕТНУЮ ШИРИНУ ЛЕСТНИЧНЫХ ПЛОЩАДОК И МАРШЕЙ. 2 Share this post Link to post Share on other sites
Posted 15.02.2018 10:22 (edited) В 13.02.2018 в 17:51, airbusnik сказал: У знакомых имеется однушка французской планировки в конце общего коридора и есть планы по захвату части этого коридора, которая продолжается от входной двери вдоль квартиры в виде тупика. Размер дополнительной площади 1,6 на 4,7 метра (можно сделать рабочий кабинет, тренажерный зал, кладовку и т.п) При этом уменьшается длинный общий коридор, мрачная темная катакомба, в конце которой скапливается разный хлам. Слыхал, что многие захватывают эту площадь и оплачивают за нее ТСЖ. Кажется в прошлом году продавал такую квартиру на Паркентском, прямо напротив АЗС, 6 или 7 этаж, тупо платили в ТЧСЖ, никаких разрешений есстно не было. Стена между кухней и залом обычная перегородка, можно всю снести. Цитата ШНК 1.04.05-06 5. В целях повышения удобств проживания разрешается проведение нижеследующих работ по реконструкции, перепланировки и переоборудованию помещений: перепланировка подсобных помещений; установка дополнительных перегородок с целью выделения отдельных комнат или их изоляция от смежных комнат; перестановка перегородок с целью получения более удобной планировки комнат; устройство новых дверных проемов (кроме случаев, указанных в п. 16) и заделка существующих, а также изменения направления открывания дверей; расширение существующих и пробивка новых оконных проемов, а также заделка существующих в жилых комнатах и подсобных помещениях (кроме случаев, указанных в п. 16); перестановка отопительных и санитарно-технических приборов (с соблюдением требований действующих норм). Edited 15.02.2018 10:24 by MAKLER 0 Share this post Link to post Share on other sites
Posted 15.02.2018 11:53 1 час назад, MAKLER сказал: Стена между кухней и залом обычная перегородка, можно всю снести. Там стена между залом и общим коридором. 0 Share this post Link to post Share on other sites