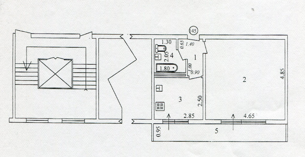
Posted 27.05.2021 17:01 Только что, Аргумент сказал: Это трешка. Смотрели такую на Карасу-6 в 2016-м, за 29 отдавали на 5/5 этаже. Район не понравился да и высоко без лифта. Там в некоторых кадастрах трёшка пишут. В некоторых четырёшка. Кто как сшустрил после 1993 года. Я тут писал уже почему в кадастрах разное количество комнат... 1 Share this post Link to post Share on other sites
Posted 27.05.2021 17:04 1 минуту назад, arteto сказал: Там в некоторых кадастрах трёшка пишут. В некоторых четырёшка. Кто как сшустрил после 1993 года. Я тут писал уже почему в кадастрах разное количество комнат... Изначально строились как треха. Есть еще однушки-франция с такими большими залами. У нас есть такая под аренду. Четвертую скорее всего колхозили уже, а потом узаконивали. 0 Share this post Link to post Share on other sites
Posted 27.05.2021 17:13 13 минут назад, Аргумент сказал: Это трешка. Смотрели такую на Карасу-6 в 2016-м, за 29 отдавали на 5/5 этаже. Район не понравился да и высоко без лифта. Это 4х по сути. Можно 4 сделать. Есть 5 комнатные, со смежными комнатами. Тут такая же тема. Никто не колхозил. Через Фароис делали. Вот ссыль http://www.tforum.uz/topic/2868-ремонт-квартиры/?do=findComment&comment=3357278 2 Share this post Link to post Share on other sites
Posted 27.05.2021 20:05 2 часа назад, Аргумент сказал: Есть еще однушки-франция с такими большими залами. Вот 1-комнатная франция, следом в 9-ти этажной галерейке: 0 Share this post Link to post Share on other sites
Posted 30.05.2021 04:56 Здравствуйте, подскажите пожалуйста, какие сейчас документы нужны при продаже квартиры? 0 Share this post Link to post Share on other sites
Posted 30.05.2021 09:03 (edited) 4 часа назад, z1983 сказал: Здравствуйте, подскажите пожалуйста, какие сейчас документы нужны при продаже квартиры? И нужен совет, появилась проблема. Решил проверить количество прописанных через my.gov.uz (справка форма-17), в квартире прописан лишний человек (несовершеннолетний). Куда теперь обращаться и как долго решать проблему? Edited 30.05.2021 09:04 by z1983 0 Share this post Link to post Share on other sites
Posted 30.05.2021 13:39 В 27.05.2021 в 17:44, MAKLER сказал: 4/1/5 Карасу-3, панель, улучшенка, сдвоенный зал, 90 кв.м., без ремонта. классная планировка , но райончик на отшибе...а такая же планировка но в 9-ти этажке на карасу тоже считается улучшенкой ? 0 Share this post Link to post Share on other sites
Posted 30.05.2021 13:43 4 часа назад, z1983 сказал: Решил проверить количество прописанных через my.gov.uz (справка форма-17), в квартире прописан лишний человек (несовершеннолетний). Куда теперь обращаться и как долго решать проблему? этот my.gov.uz веселый... на мне как то хата чужая весела... и типа долг на мне, не плачу налоги... поехал в налоговую того района где была хата, объяснил ситуацию... спросили только мое ФИО , даже паспорт не спросили ...и все вот так лишился чужой хаты из своего личного кабинета) 2 Share this post Link to post Share on other sites
Posted 30.05.2021 15:03 1 hour ago, vladfile said: в 9-ти этажке на карасу тоже считается улучшенкой ? Да 0 Share this post Link to post Share on other sites
Posted 31.05.2021 07:21 13 минут назад, vladfile сказал: как 30 квартир или 1 наркоторговец или около 1,8 млн $ может повлиять на рынок недвижимости в городе с почти 3,5 млн населением ? и кто сказал, что он будет тут жить ? Как вариант , просто приобретают недвижимость, для перепродажи... Создают пузырь Это из разряда тем "казахи скупают" итд... Пузырь уже создан, по всему городу т.н комерция стоит и никакой прибыли не принесла, даже с её окупаемостью большие проблемы, новостройки понакупали и теперь продать не могут, если сделали ремонт то максимум за пол цены от ремонта продашь... Аренда выше 200-300 уже большие проблемы сдать. 3 Share this post Link to post Share on other sites
Posted 31.05.2021 07:26 4 минуты назад, Monero сказал: Аренда выше 200-300 уже большие проблемы сдать Про проблему с арендой для арендодателей тут еще год назад ванговали. Так оно и случилось 0 Share this post Link to post Share on other sites
Posted 31.05.2021 07:34 11 минут назад, Monero сказал: Это из разряда тем "казахи скупают" ну по факту очень часто представители бизнеса от соседей очень часто берут в аренду за дорого в аренду квартиры с полным фаршем 0 Share this post Link to post Share on other sites
Posted 31.05.2021 07:40 14 минут назад, Monero сказал: . Аренда выше 200-300 уже большие проблемы сдать. ну не знаю... в летний период в том году домики в Ташкенте с минимальным ремонтом и наличием бассейна вроде дешевле 1.500 баксов было очень трудно найти 0 Share this post Link to post Share on other sites
Posted 01.06.2021 17:07 Наконец нашли и оформили домик отвечающий всем нашим пожеланиям, район с видом гор и залива высота примерно 300 метров от уровня, хорошие школы в и контингент проживающих. Рядом хайвей, два озера естественного происхождения, исторические и природные парки в окружении. Домик свежий с большим бассейном и бекярдом. Гараж на три машины и паркоместо еще на три. Это когда на бордюре-керб- написано кто может воспользоваться стоянкой . Для велика не особенно хорошо, примерно милю крутой подъем, на машине нормально. По договору хозяева поживут еще пару тройка месяцев пока ищут для себя домик в довольно крутом районе. в горах. Почти год искали подходящий вариант. 7 Share this post Link to post Share on other sites
Posted 01.06.2021 17:20 Только что, trew сказал: Фото будет? И не одно. 1 Share this post Link to post Share on other sites
Posted 03.06.2021 09:18 "В мае средняя цена предложения жилья показала действительный прорыв уровня сопротивления" (Игорь Цой)https://repost.uz/estate-in-may Ну что ж , прошли ожидаемые три месяца (см. мой пост от 10 02.2021) и что мы имеем (спасибо Тигору за его труд). Май дал +2.1% , а предыдущие три месяца дали +0.3%, +0.3%, +0.1% ("пружина " сжалась). СЦП стала равна 717 долл\квм ,т.е пробила линию сопротивления (705), пробила уровень 61.8% по Фибоначи ( см.Тигор). Фигура разворота "Голова и плечи " не завершилась( сломлена). По теханализу все это говорит о начале тенденции движения цены вверх . Значит цена должна пойти по второму сценарию (см. февральский пост- "вверх с текущей, без отката"). По моим прикидкам ,на основе графика Тигора, через 7-9 мес пробьет исторический пик (февраля 2015) , до него осталось преодолеть 13%. Значит к марту 2022 мы должны зафиксировать новый пик (кто забыл , напомню - "исторический пик " означает - никогда не бывший в истории рынка Уз). Вывод - это лучшее время для ПОКУПКИ в расчете получить не менее 10% прибыли от вложенного сейчас. Кто еще не уверен - может еще подождать итогов июня и если СЦП даст не менее 2% роста,то тогда вперед, хотя это как-то не вяжется с привычным "июнь-июль - мертвый сезон". Но каждый должен решать сам (здесь должен быть Дискляймер - "администрация не несет ответствености..." Из фундаментальных факторов , кроме обещанной ипотеки в июне я думал цену подстегнули "афганские деньги". Но в аналитику Тигора они не вошли и не могли попасть , так как Тигор оперирует в основном СЦП (средн.. ценой ПРЕДЛОЖЕНИЯ, а не завершенных сделок).Значит "афганские деньги" (если они реальны) еще добавят бензинчика. Всем здоровья и успешных планов. ЗЫ. Ув.hoсum, благодаря нашему форумчанину у меня появился, но , увы, сорвался шанс восстановить с Вами прежние дружеские отношения (а это огорчает), но надеюсь такой шанс еще появится ( какие наши годы, не правда ли ? ). Админ, сорри за оффтоп. 2 Share this post Link to post Share on other sites
Posted 03.06.2021 16:57 7 hours ago, Val said: Май дал +2.1% Еще всего лишь10 афганцев и + будет раз в десять больше 2 Share this post Link to post Share on other sites
Posted 03.06.2021 17:27 7 часов назад, Val сказал: По теханализу все это говорит о начале тенденции движения цены вверх . Значит цена должна пойти по второму сценарию (см. февральский пост- "вверх с текущей, без отката"). По моим прикидкам ,на основе графика Тигора, через 7-9 мес пробьет исторический пик (февраля 2015) , до него осталось преодолеть 13%. Значит к марту 2022 мы должны зафиксировать новый пик (кто забыл , напомню - "исторический пик " означает - никогда не бывший в истории рынка Уз). Вывод - это лучшее время для ПОКУПКИ в расчете получить не менее 10% прибыли от вложенного сейчас. Кто еще не уверен - может еще подождать итогов июня и если СЦП даст не менее 2% роста,то тогда вперед, хотя это как-то не вяжется с привычным "июнь-июль - мертвый сезон". Но каждый должен решать сам (здесь должен быть Дискляймер - "администрация не несет ответствености..." Не верю я в тех анализ когда колода карт в руках мошейника(не вас имел ввиду). Но как говориться без лоха и жизнь плоха. Но скорее всего так и будет только по другой причине. Могу сказать что насколько я понимаю у государства стоит задача перевести как можно больше народу из сельской местности в города. Так что города будут по любасу как и цены пока что, а потом посмотрим. 2 Share this post Link to post Share on other sites
Posted 03.06.2021 21:39 (edited) 4 часа назад, DOS сказал: Еще всего лишь10 афганцев и + будет раз в десять больше Ну там не только афганцы, сейчас власть в киргизии сменилась, а денег в бюджете нет, жапаров приезжал к нашему просить денег, сейчас поехал к эрдогану в турцию, за тем же, так вот там в киргизии трясут богатых "раим миллиона" там посадили но после отжанных денег освободили, и так со многими богачами так, и посему многие переводят свли активы в узбекию, афганистан такая же ситуация, там с выводом америки тоже потихоньку богачи переводят активы в т.ч. сюда. Кроме того индийцы двое мидлиардеры мошенники что кинули многих в дубаях, да и вообще по миру везде отмывают здесь свои денежки. Деньги не пахнут же, эдакая прачечная стала. Миллиардами отмывають...индийцы, афганцы, киргизы, это тех кого я слышал... Ну и наши не дураки ведь... вот и растут цены на недвижимость, а эти афганцы, да ищут в т.ч. промышленность вложиться, на днях много езжу многие недавно отстроенные здания под гостиницы, итд много где продались буквально за месяца два-три. Ктото их секпает на корню. Да ин наши миллиардами понабравшие кредиты, освоили их наверное, но опасаются наверное зарубеж выводить, чай арестовать там могут по примеру гугуши, вот и разлетается у нас тут недвижимость как горячие пирожки. Артето тож наверное в курсе всего этого но молчит как партизан. Edited 03.06.2021 21:51 by doniyor 2 Share this post Link to post Share on other sites
Posted 04.06.2021 06:18 8 часов назад, doniyor сказал: Артето тож наверное в курсе всего этого но молчит как партизан Артетджан "казался жадным, хитрым, умным, плотоядным" 0 Share this post Link to post Share on other sites
Posted 04.06.2021 07:01 (edited) Всё банально просто, вырос метал более чем в 2 раза, вырастет себестоимость новостроек, а они потянут вверх и вторичку. Сколько в себестоимости новостроя сидит метал? А это не только арматура, но и окна, кровля, входные двери и тд? Считайте..... Edited 04.06.2021 07:01 by avtomax 5 Share this post Link to post Share on other sites
Posted 04.06.2021 09:36 2 часа назад, avtomax сказал: Всё банально просто, вырос метал более чем в 2 раза, вырастет себестоимость новостроек, а они потянут вверх и вторичку. Кстати, в России деревяшка подорожала в 2 раза за год. Как у нас с этим делом? 0 Share this post Link to post Share on other sites
Posted 04.06.2021 10:50 1 час назад, nerokes сказал: Кстати, в России деревяшка подорожала в 2 раза за год. Как у нас с этим делом? В современном строительстве "дерево" не так уж влияет на цену, а если стройка это монолит-кирпич, то металла требует уйву кучу 0 Share this post Link to post Share on other sites
Posted 04.06.2021 12:14 1 час назад, avtomax сказал: В современном строительстве "дерево" не так уж влияет на цену, а если стройка это монолит-кирпич, то металла требует уйву кучу В России и металл подорожал нехило. 0 Share this post Link to post Share on other sites