Posted 15.12.2017 18:04 Паркентский 3-шка в 9-ти этажке на 5 этаже за 30к.(без ремонта),дорого или как ? 1 Share this post Link to post Share on other sites
Posted 15.12.2017 18:28 2 hours ago, Улугбек Асад угли said: только в третьем графике, наверное, забыли добавить и прогноз цены на жилье на 2017 год . Так он же указан на 2 графике Tigor, наверное более точнее будет график из таблицы где указано сальдо, с учетом отправленных из Узбекистана. Разница выходит где-то на 300 млн меньше за последние 2 года . Интересно, но ежеквартальная сумма отправленных денег практически одинакова 70-80 (в 3 квартале чуть больше) 0 Share this post Link to post Share on other sites
Posted 15.12.2017 19:19 (edited) 1 hour ago, Добрый гений said: Паркентский 3-шка в 9-ти этажке на 5 этаже за 30к.(без ремонта),дорого или как ? Если улучшенка то хорошо. Если франция можно поторговаться. 2 года назад друзья взяли на паркентском улучшенку 3ку на 5 этаже за 55, тоже без ремонта Edited 15.12.2017 19:21 by Anel 0 Share this post Link to post Share on other sites
Posted 15.12.2017 19:30 6 минут назад, Anel сказал: Если улучшенка то хорошо. Если франция можно поторговаться. 2 года назад друзья взяли на паркентском улучшенку 3ку на 5 этаже за 55, тоже без ремонта Прошу прощения,а чем отличается улучшенная от Франции? Мне казалось что все одинаковые в 9-ти этажках(смотрю на зал 5х5) Просто никогда не заострялся с недвигой,а теперь появилась необходимость.С хрущёвками и малогабаритками понятно,вот 77-я,Франция пока вникаю 0 Share this post Link to post Share on other sites
Posted 15.12.2017 19:39 (edited) 19 minutes ago, Добрый гений said: Прошу прощения,а чем отличается улучшенная от Франции? Мне казалось что все одинаковые в 9-ти этажках(смотрю на зал 5х5) Просто никогда не заострялся с недвигой,а теперь появилась необходимость.С хрущёвками и малогабаритками понятно,вот 77-я,Франция пока вникаю франция узкий балкон 80см на 7 метров, и комнаты маленькие очень, только зал большой 5 на 5, а остальные две комнатушки. И есть на паркентском точно не знаю, банковские дома называются, или улучшенки, там большой балкон, 2, 5 на 6 или на 7 м. А и еще в спальне второй балкон 2 на 3. И комнаты тоже большие, если во франции трешка около 73 квадратов, то в улучшенке около 85 кв. Я не риэлтор, может меня поправят. 77 серии это 4-5 этажки кирпичные, они помоему только через дорогу от паркентского есть, на стороне паркентского их нет помоему. Там балкон 2 на 6 гдето, ну и это кирпич. Edited 15.12.2017 19:49 by Anel 3 Share this post Link to post Share on other sites
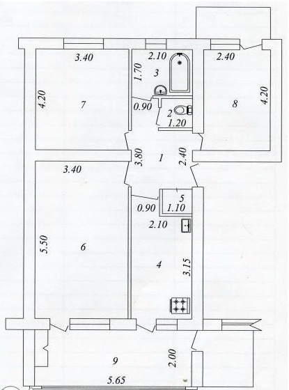
Posted 15.12.2017 21:36 3 часа назад, Bshmel сказал: Tigor, наверное более точнее будет график из таблицы где указано сальдо, с учетом отправленных из Узбекистана. 1 час назад, Anel сказал: 77 серии это 4-5 этажки кирпичные, они помоему только через дорогу от паркентского есть, на стороне паркентского их нет помоему. Там балкон 2 на 6 гдето, ну и это кирпич. Если есть окошко в ванной, то это или 77-серия или спецплан :). Это 77-серия (может быть с балконом или без): 11 Share this post Link to post Share on other sites
Posted 16.12.2017 07:58 10 часов назад, tigor сказал: Это 77-серия (может быть с балконом или без): У меня такая квартира. Только без балкончика в детской и без кладовой на лоджии. Брал весной за 32, БУЗ-2. Без ремонта. 0 Share this post Link to post Share on other sites
Posted 17.12.2017 17:21 У меня такая, как на плане Тайгора (с балкончиком и кладовой, метраж один в один), так же на Буз-2. Весной на втором этаже соседи продавали за 40, отдали за 36, не торец, чистая. 0 Share this post Link to post Share on other sites
Posted 18.12.2017 03:45 В 16.12.2017 в 12:58, Аргумент сказал: У меня такая квартира. Только без балкончика в детской и без кладовой на лоджии. Брал весной за 32, БУЗ-2. Без ремонта. я думал кладовку люди сами пристраивают ... 0 Share this post Link to post Share on other sites
Posted 18.12.2017 12:28 8 часов назад, ruslan4ik сказал: я думал кладовку люди сами пристраивают ... В 77-ой она по плану на двух соседей: это вообще-то сушилка. Но люди пополам ее закладывают и получается или кладовка или газплиту туда выносят. 0 Share this post Link to post Share on other sites
Posted 20.12.2017 07:13 Подскажите,а что за квартира с двумя балконами 1,5х3 и 4х6 (2шка 70м2) ? 0 Share this post Link to post Share on other sites
Posted 20.12.2017 08:16 On 16.12.2017 at 2:36 AM, tigor said: Это 77-серия (может быть с балконом или без): У меня такая же, только еще балкон по всей ширине. В соседнем подъезде аналогичную, слегка переделанную и напичканную благами цивилизации, пытаются продать за 140 тыщ 0 Share this post Link to post Share on other sites
Posted 20.12.2017 08:49 33 minutes ago, aaa said: У меня такая же, только еще балкон по всей ширине. В соседнем подъезде аналогичную, слегка переделанную и напичканную благами цивилизации, пытаются продать за 140 тыщ а район? 0 Share this post Link to post Share on other sites
Posted 20.12.2017 11:49 2 hours ago, Anel said: а район? Центр, вестимо. Карзинкя на Жуковского 0 Share this post Link to post Share on other sites
Posted 20.12.2017 12:16 Посмотрел ща 2 -77серия на Паркентском 4 этаж- убитая как есть,цена 33к. И у Максимки где-то в попкэ(за военной частью), 77-я 3 этаж,мутная какая-то,цена 34к. .. Грит мне маклер что цены сильно растут и всё недорогое уже продано,хз кого слушать. Паркенсткий 3шка Франция от 35 убитые,которую предлагали за 30 уже продали.. Эт я как всегда,вовремя 0 Share this post Link to post Share on other sites
Posted 20.12.2017 12:31 Переваривая вышесказанное вытекает нижеследуюшее - "ЛУЧШЕЕ время для покупки" уже прошло. Наступило просто - "Скорее беги покупай, пока ещё не поздно" 2 Share this post Link to post Share on other sites
Posted 20.12.2017 12:42 (edited) del Edited 20.12.2017 12:47 by My3bIKaHT 0 Share this post Link to post Share on other sites
Posted 20.12.2017 13:23 51 минуту назад, DOS сказал: Переваривая вышесказанное вытекает нижеследуюшее - "ЛУЧШЕЕ время для покупки" уже прошло. Наступило просто - "Скорее беги покупай, пока ещё не поздно" Бла,мне так и сказали Грят из-за тотального сноса,вторичка стала более востребована ,т.е бюджетные варианты 0 Share this post Link to post Share on other sites
Posted 20.12.2017 14:06 1 час назад, DOS сказал: Переваривая вышесказанное вытекает нижеследуюшее - "ЛУЧШЕЕ время для покупки" уже прошло. Наступило просто - "Скорее беги покупай, пока ещё не поздно" это точно, чо-то зателился я, и ушла квартиру на массиве куйлюке за 17 тыщ 1.1.5 пластиковые рамы, кондер, новая плита, пластиковые трубысейчас за эти деньги предлагают 4 этаж без ремонта прошло буквально 2-3 недели 0 Share this post Link to post Share on other sites
Posted 20.12.2017 14:06 (edited) 44 минуты назад, Добрый гений сказал: Бла,мне так и сказали Грят из-за тотального сноса,вторичка стала более востребована ,т.е бюджетные варианты Бери первичку. Сейчас из за тотального сноса идет тотальная стройка. Предложений дофига и будет еще больше. Качество новостроя ничуть не хуже привычных нам франциям и 77 серии. В плане ровности я бы даже сказал в новострое лучше и значительно. Кстати, я тут говорил про качество 77 серии построенной в 94м. Так вот не смотря на глину с известью вместо раствора - касается это только кдадки. Я ободрал всю квартиру до основания. Сам бетонный каркас хоть и жутко кривой и косой, но при этом очень даже крепкий. Edited 20.12.2017 14:09 by Real Root 3 Share this post Link to post Share on other sites
Posted 20.12.2017 14:10 3 минуты назад, Real Root сказал: Бери первичку. Сейчас из за тотального сноса идет тотальная стройка. Предложений дофига и будет еще больше. Качество новостроя ничуть не хуже привычных нам франциям и 77 серии. В плане ровности я бы даже сказал в новострое лучше и значительно. забыл сказать что нету рисков по тому что квартира уже конфискована 2 Share this post Link to post Share on other sites
Posted 20.12.2017 22:11 9 часов назад, Добрый гений сказал: Грит мне маклер что цены сильно растут и всё недорогое Всегда так говорят, если вы покупатель. Попробуйте продать, удивитесь, что услышите от тех же людей. 11 Share this post Link to post Share on other sites
Posted 21.12.2017 02:19 4 часа назад, Талами сказал: Всегда так говорят, если вы покупатель. Попробуйте продать, удивитесь, что услышите от тех же людей. 0 Share this post Link to post Share on other sites
Posted 21.12.2017 03:49 15 hours ago, Добрый гений said: Посмотрел ща 2 -77серия на Паркентском 4 этаж- убитая как есть,цена 33к. И у Максимки где-то в попкэ(за военной частью), 77-я 3 этаж,мутная какая-то,цена 34к. .. Грит мне маклер что цены сильно растут и всё недорогое уже продано,хз кого слушать. Паркенсткий 3шка Франция от 35 убитые,которую предлагали за 30 уже продали.. Эт я как всегда,вовремя летом на паркентском 4х комнатная 9/9, просили 33 за 30 тыс отдавали, через базар за новостроем, прием квартира была не убитая, в нормальном состоянии. 16 hours ago, aaa said: Центр, вестимо. Карзинкя на Жуковского ну 140 они конечно загнули)) 0 Share this post Link to post Share on other sites
Posted 21.12.2017 04:35 (edited) 14 hours ago, Real Root said: Бери первичку. Хм... предложение конечно дельное, но первичка в 2+ раза дороже аналогичной по району и квадратуре вторички с учетом ремонта (а иногда и без учета). А качество - застройщик на застройщика не приходится. Исключения составляют бюджетные новострои от неизвестных девелоперов на окраинах. Edited 21.12.2017 04:37 by Immergast 0 Share this post Link to post Share on other sites